HOME - 지성갤러리 > 설계갤러리 Modern 37평형
충남 아산 김OO님
거실과 주방의 분리로 각각의 독립성 최대한 확보
모던형태의 세련된 디자인
01 외부투시도
Bird's-eye view
02 건축개요
Housing Summary| 총면적 | 121.29㎡ (36.69py) | 구조 | 경량목구조 |
|---|---|---|---|
| 1층면적 | 82.86㎡ (25.07py) | 지붕 | 아스팔트싱글 |
| 2층면적 | 38.43㎡ (11.63py) | 외부마감 | 리얼징크, 테라코트(플렉시텍스), 인조석 |
| 3층면적 | - | 내부마감 | LG실크벽지, LG강화마루 |
| 1층포치 / 데크 | 2.70㎡ (0.82py) | 창호 | 시스템창호 |
| 2층발코니 / 베란다 | 11.60㎡ (3.51py) | 다락 / 거실오픈 | - / 2층 오픈 |
| 3층발코니 / 베란다 | - |
03 설계컨셉
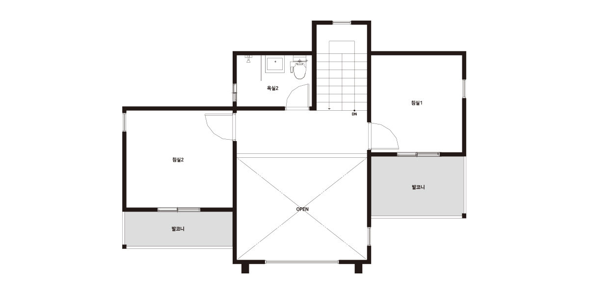
Design concept04 공간구성
Floor Plan| 1F | 1층 구성: 현관, 거실, 주방/식당, 안방, 드레스룸, 부부욕실, 다용도실, 보일러실, 욕실1 |
|---|
| 2F | 2층 구성: 침실1, 침실2, 욕실2 |
|---|