HOME - 지성갤러리 > 설계갤러리 Modern 39평형
경기 용인 조OO님
지붕에 징크를 사용하여 심플한 느낌의 주택형태 부여
독특한 평면형식으로 건축주님만의 공간 구성
01 외부투시도
Bird's-eye view
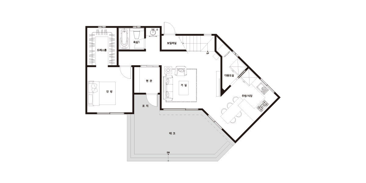
02 건축개요
Housing Summary| 총면적 | 129.69㎡ (39.23py) | 구조 | 경량목구조 |
|---|---|---|---|
| 1층면적 | 80.52㎡ (24.36py) | 지붕 | 알루미늄징크 |
| 2층면적 | 49.17㎡ (14.87py) | 외부마감 | 테라코트(플렉시텍스), 탄화목사이딩, 파벽돌 |
| 3층면적 | - | 내부마감 | LG실크벽지, LG강화마루 |
| 1층포치 / 데크 | 3.15㎡ (0.95py) / 15.36㎡ (4.65py) | 창호 | 시스템창호 |
| 2층발코니 / 베란다 | 9.48㎡ (2.87py) | 다락 / 거실오픈 | - |
| 3층발코니 / 베란다 | - |
03 설계컨셉
Design concept04 공간구성
Floor Plan| 1F | 1층 구성: 현관, 거실, 주방/식당, 창고, 안방, 드레스룸, 다용도실, 욕실1 |
|---|
| 2F | 2층 구성: 드레스룸, 침실1, 욕실2, 서재 |
|---|