HOME - 지성갤러리 > 설계갤러리 Modern 56평형
RC 모던
노출콘크리트 마감으로 현대적 디자인 연출
넓은 테라스를 통한 외부와의 적극적 소통 유도
01 외부투시도
Bird's-eye view
02 건축개요
Housing Summary| 총면적 | 184.77㎡ (55.89py) | 구조 | 철근콘크리트조 |
|---|---|---|---|
| 1층면적 | 129.78㎡ (39.26py) | 지붕 | 평슬라브 |
| 2층면적 | 54.99㎡ (16.63py) | 외부마감 | 노출콘크리트, 적삼목, 스타코, 세라믹사이딩 |
| 3층면적 | - | 내부마감 | LG실크벽지, LG강화마루 |
| 1층포치 / 데크 | 33.71㎡ (10.2py) / 26.52㎡ (8.02py) | 창호 | 시스템창호 |
| 2층발코니 / 베란다 | 35.91㎡ (10.86py) | 다락 / 거실오픈 | - / 1.5층 오픈 |
| 3층발코니 / 베란다 | - |
03 설계컨셉
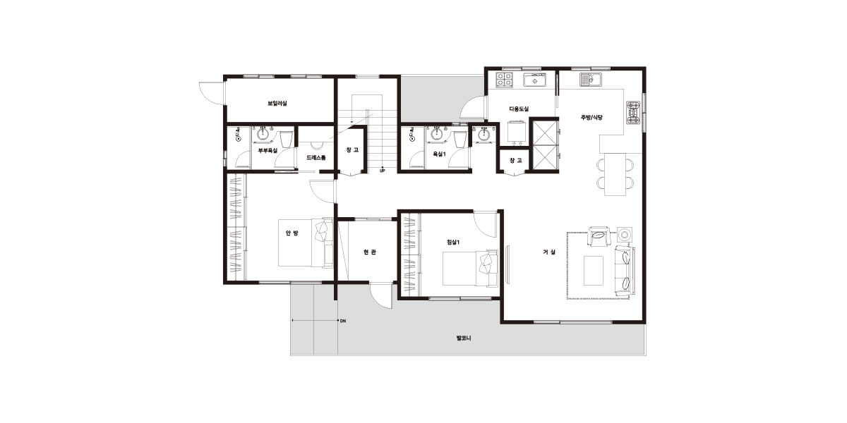
Design concept04 공간구성
Floor Plan| 1F | 1층 구성: 현관, 거실, 주방, 식당, 창고, 안방, 부부욕실, 다용도실, 보일러실, 침실1, 욕실1 |
|---|
| 2F | 2층 구성: 침실2, 침실3, 욕실2, 간이주방 |
|---|