HOME - 지성갤러리 > 설계갤러리 Modern 57평형
목조 모던
건축주의 의도에 따라 거실과 침실을 완전히 분리시켜
각 공간의 기능을 살렸고, 긴 복도는 전시공간으로 활용
01 외부투시도
Bird's-eye view
02 건축개요
Housing Summary| 총면적 | 186.84㎡ (56.52py) | 구조 | 경량목구조 |
|---|---|---|---|
| 1층면적 | 127.27㎡ (38.50py) | 지붕 | 알루미늄징크 |
| 2층면적 | 59.57㎡ (18.02py) | 외부마감 | 스타코, 적삼목 |
| 3층면적 | - | 내부마감 | LG실크벽지, LG강화마루 |
| 1층포치 / 데크 | 4.13㎡ (1.25py) / 34.10㎡ (10.32py) | 창호 | 시스템창호 |
| 2층발코니 / 베란다 | 6.27㎡ (1.90py) | 다락 / 거실오픈 | - / 1층 오픈 |
| 3층발코니 / 베란다 | - |
03 설계컨셉
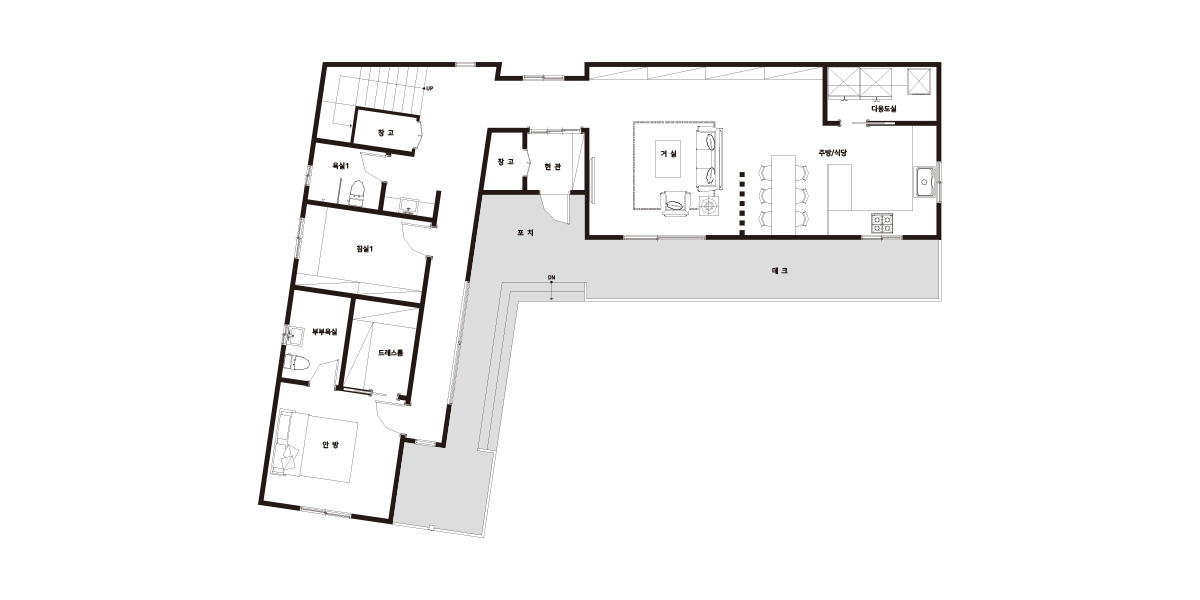
Design concept04 공간구성
Floor Plan| 1F | 1층 구성: 현관, 거실, 주방/식당, 다용도실, 안방, 드레스룸, 작업실, 화장실1.2 |
|---|
| 2F | 2층 구성: 침실2, 침실3, 가족실, 화장실3, 창고 |
|---|