HOME - 지성갤러리 > 설계갤러리 Modern 48평형
목조 모던
모던스타일의 고급주택
파벽돌을 사용하여 조형미와 확장성 부여
01 외부투시도
Bird's-eye view
02 건축개요
Housing Summary| 총면적 | 157.38㎡ (47.61py) | 구조 | 철근콘크리트조 |
|---|---|---|---|
| 1층면적 | 100.74㎡ (30.47py) | 지붕 | 평슬라브 |
| 2층면적 | 56.64㎡ (17.13py) | 외부마감 | 스타코, 파벽돌, 목재사이딩 |
| 3층면적 | - | 내부마감 | LG실크벽지, LG강화마루 |
| 1층포치 / 데크 | 2.67㎡ (0.81py) / 46.34㎡ (14.02py) | 창호 | 시스템창호 |
| 2층발코니 / 베란다 | 43.62㎡ (13.20py) | 다락 / 거실오픈 | - |
| 3층발코니 / 베란다 | - |
03 설계컨셉
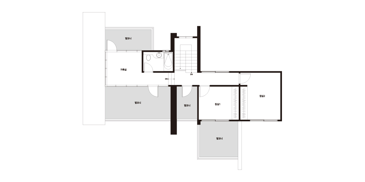
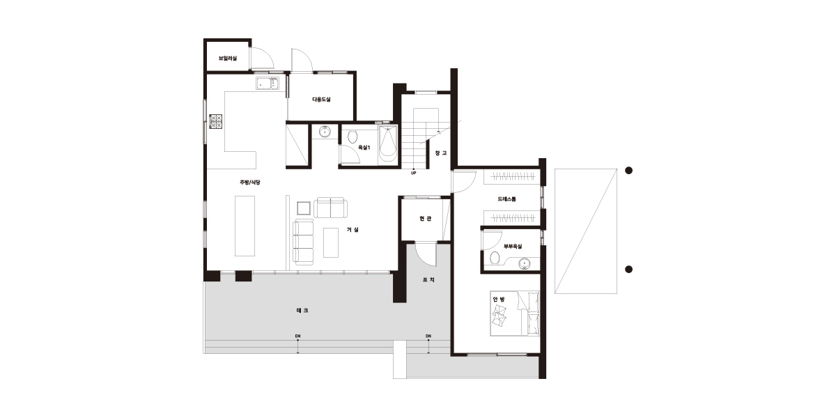
Design concept04 공간구성
Floor Plan| 1F | 1층 구성: 현관, 거실, 주방, 식당, 다목적실, 안방, 부부욕실, 드레스룸, 욕실, 보일러실 |
|---|
| 2F | 2층 구성: 가족실, 욕실, 침실1, 침실2 |
|---|