HOME - 지성갤러리 > 설계갤러리 Modern 44평형
RC 모던
심플하면서도 비상하는 듯한 느낌의 세련되어 보이는 모던스타일
주변 바닷가에 어울리면서도 주말 주택으로도 손색없는 디자인
01 외부투시도
Bird's-eye view
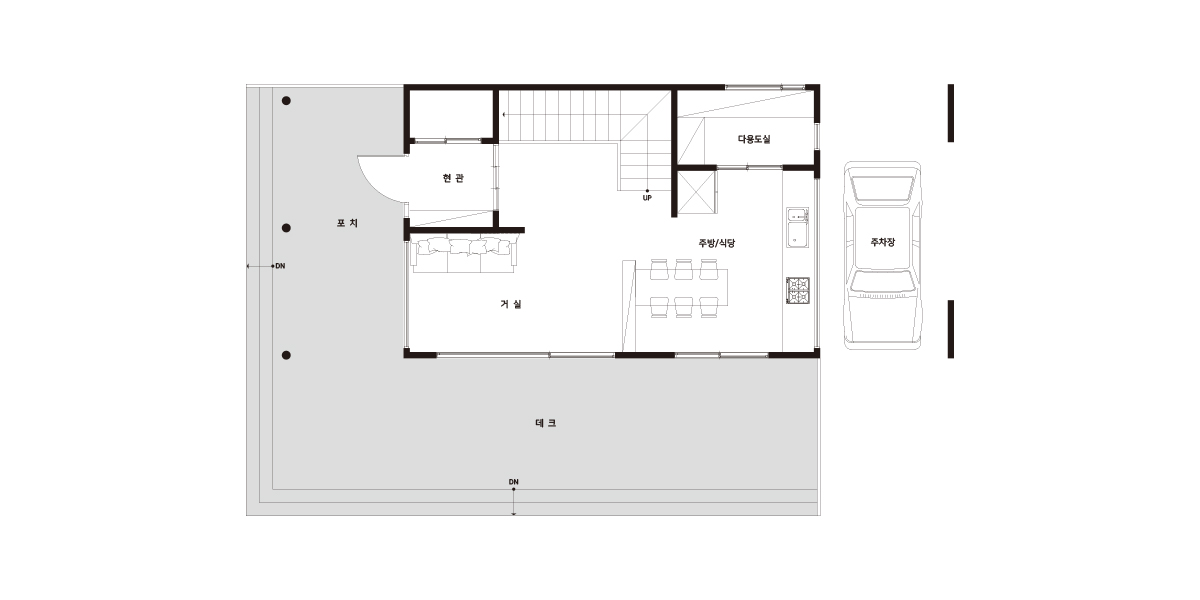
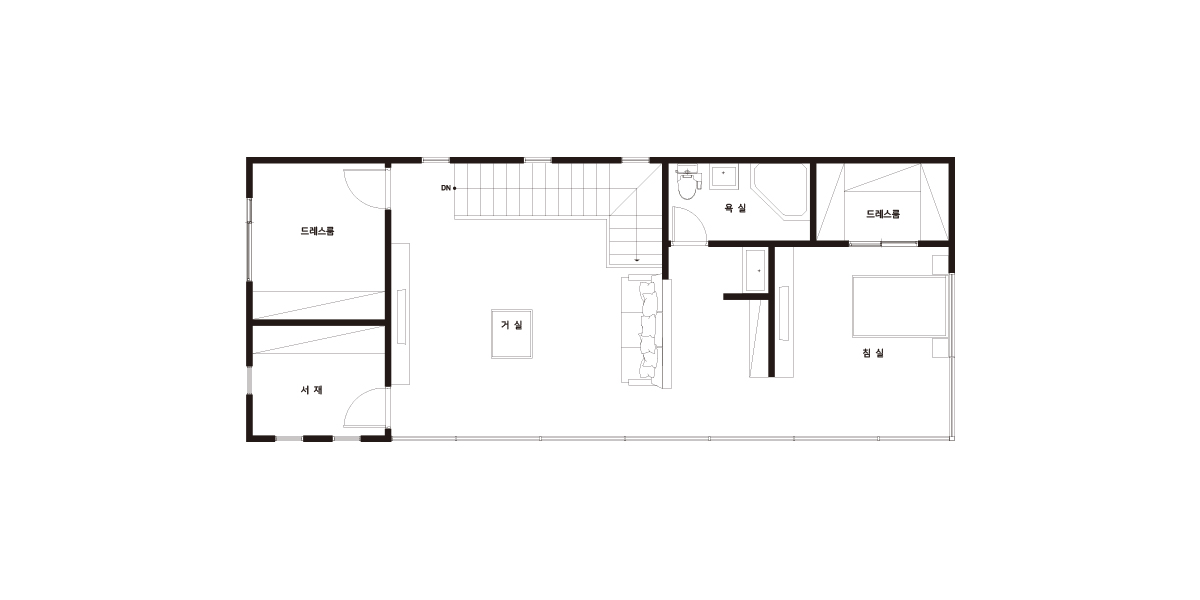
02 건축개요
Housing Summary| 총면적 | 146.40㎡ (44.29py) | 구조 | 철근콘크리트조 |
|---|---|---|---|
| 1층면적 | 55.20㎡ (16.70py) | 지붕 | 평슬라브 |
| 2층면적 | 91.20㎡ (27.59py) | 외부마감 | 노출콘크리트, 이페목 |
| 3층면적 | - | 내부마감 | LG실크벽지, LG강화마루 |
| 1층포치 / 데크 | 34.20㎡ (10.35py) / 36.60㎡ (11.07py) | 창호 | 시스템창호 |
| 2층발코니 / 베란다 | - | 다락 / 거실오픈 | - |
| 3층발코니 / 베란다 | - |
03 설계컨셉
Design concept04 공간구성
Floor Plan| 1F | 1층 구성: 거실, 주방/식당, 다용도실, 현관, 창고 |
|---|
| 2F | 2층 구성: 침실, 게스트룸, 서재, 거실/다목적실, 욕실, 드레스룸 |
|---|