HOME - 지성갤러리 > 설계갤러리 Mediterranean 41평형
목조 지중해
유럽식 기와에 어울리는 아이보리색 스타코와
석재데크의 색상을 맞춰 적체적으로 따뜻한 느낌이 들도록 계획
01 외부투시도
Bird's-eye view
02 건축개요
Housing Summary| 총면적 | 136.96㎡ (41.43py) | 구조 | 경량목구조 |
|---|---|---|---|
| 1층면적 | 82.38㎡ (24.92py) | 지붕 | 스페니쉬기와 |
| 2층면적 | 54.58㎡ (16.51py) | 외부마감 | 스타코, 파벽돌 |
| 3층면적 | - | 내부마감 | LG실크벽지, LG강화마루 |
| 1층포치 / 데크 | 3.36㎡ (1.02py) / 31.45㎡ (9.51py) | 창호 | 시스템창호 |
| 2층발코니 / 베란다 | 3.36㎡ (1.02py) | 다락 / 거실오픈 | - |
| 3층발코니 / 베란다 | - |
03 설계컨셉
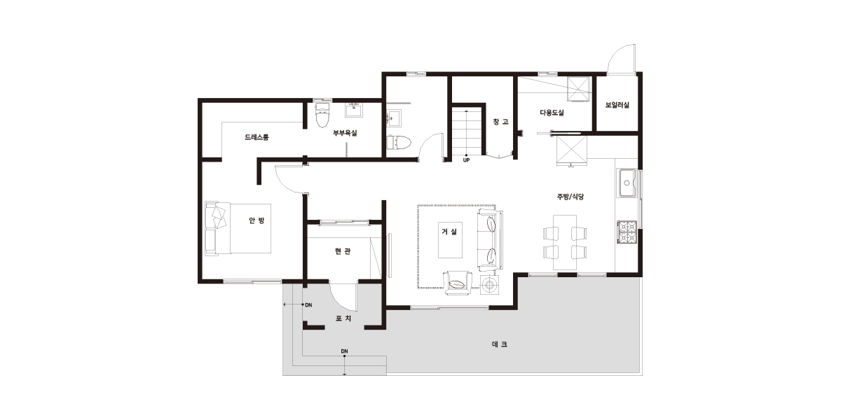
Design concept04 공간구성
Floor Plan| 1F | 1층 구성: 현관, 거실, 주방, 다용도실, 보일러실, 안방, 드레스룸, 화장실1.2 |
|---|
| 2F | 2층 구성: 침실1, 침실2, 서재, 화장실3, 포치 |
|---|