HOME - 지성갤러리 > 설계갤러리 Modern 40평형
목조 모던
심플하고 모던한 느낌의 외관 연출
주방과 거실을 한 공간에 담아 공간감 확장
01 외부투시도
Bird's-eye view
02 건축개요
Housing Summary| 총면적 | 131.95㎡ (39.91py) | 구조 | 경량목구조 |
|---|---|---|---|
| 1층면적 | 60.05㎡ (18.17py) | 지붕 | 아스팔트싱글 |
| 2층면적 | 71.90㎡ (21.75py) | 외부마감 | 스타코, 목재사이딩 |
| 3층면적 | - | 내부마감 | LG실크벽지, LG강화마루 |
| 1층포치 / 데크 | 19.89㎡ (6.02py) / 23.82㎡ (7.21py) | 창호 | 시스템창호 |
| 2층발코니 / 베란다 | - | 다락 / 거실오픈 | - / 2층 오픈 |
| 3층발코니 / 베란다 | - |
03 설계컨셉
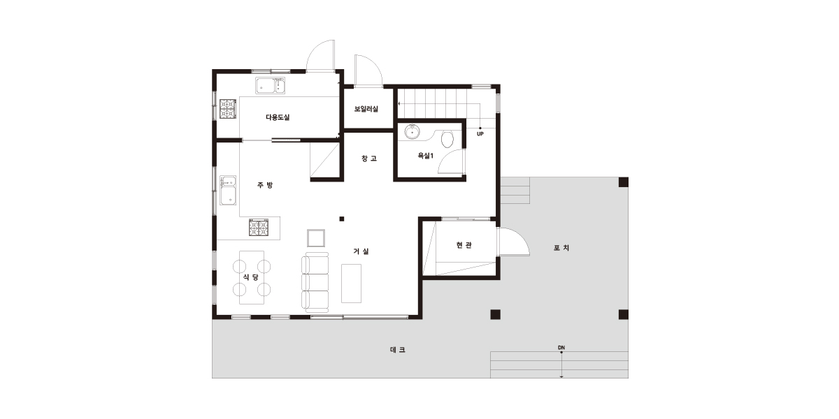
Design concept04 공간구성
Floor Plan| 1F | 1층 구성: 현관, 거실, 주방, 식당, 다용도실, 창고, 욕실, 보일러실 |
|---|
| 2F | 2층 구성: 안방, 부부욕실, 드레스룸, 침실1, 침실2, 욕실 |
|---|