HOME - 지성갤러리 > 설계갤러리 Classic 39평형
목조 클래식
거실과 넓은 다락이 중심을 잡은 중후한 클래식 주택으로
간결한 몰딩으로 포인트를 준 디자인
01 외부투시도
Bird's-eye view
02 건축개요
Housing Summary| 총면적 | 129.69㎡ (39.23py) | 구조 | 경량목구조 |
|---|---|---|---|
| 1층면적 | 77.91㎡ (23.57py) | 지붕 | 아스팔트싱글 |
| 2층면적 | 51.78㎡ (15.66py) | 외부마감 | 스타코, 적삼목, 세라믹사이딩 |
| 3층면적 | - | 내부마감 | LG실크벽지, LG강화마루 |
| 1층포치 / 데크 | 3.12㎡ (0.94py) / 23.49㎡ (7.11py) | 창호 | 시스템창호 |
| 2층발코니 / 베란다 | 2.70㎡ (0.82py) | 다락 / 거실오픈 | 15.51㎡ (4.69py) / 1.5층 오픈 |
| 3층발코니 / 베란다 | - |
03 설계컨셉
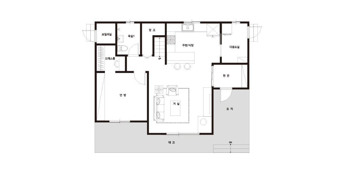
Design concept04 공간구성
Floor Plan| 1F | 1층 구성: 현관, 거실, 주방/식당, 다용도실, 안방, 드레스룸, 화장실1, 창고, 보일러실 |
|---|
| 2F | 2층 구성: 침실1, 침실2, 가족실, 다락, 화장실2 |
|---|