HOME - 지성갤러리 > 설계갤러리 Modern 36평형
목조 모던
트렌디한 디자인의 모던 하우스
현관 옆에 익스트림 수납공간 설치로 다양한 외부활동 지원
01 외부투시도
Bird's-eye view
02 건축개요
Housing Summary| 총면적 | 120.63㎡ (36.49py) | 구조 | 경량목구조 |
|---|---|---|---|
| 1층면적 | 60.60㎡ (18.33py) | 지붕 | 리얼징크 |
| 2층면적 | 60.06㎡ (18.16py) | 외부마감 | 스타코, 세라믹사이딩, 리얼징크 |
| 3층면적 | - | 내부마감 | LG실크벽지, LG강화마루 |
| 1층포치 / 데크 | 1.01㎡ (0.31py) / 32.39㎡ (9.80py) | 창호 | 시스템창호 |
| 2층발코니 / 베란다 | 8.38㎡ (2.53py) | 다락 / 거실오픈 | - / 2층 오픈 |
| 3층발코니 / 베란다 | - |
03 설계컨셉
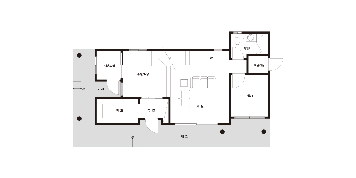
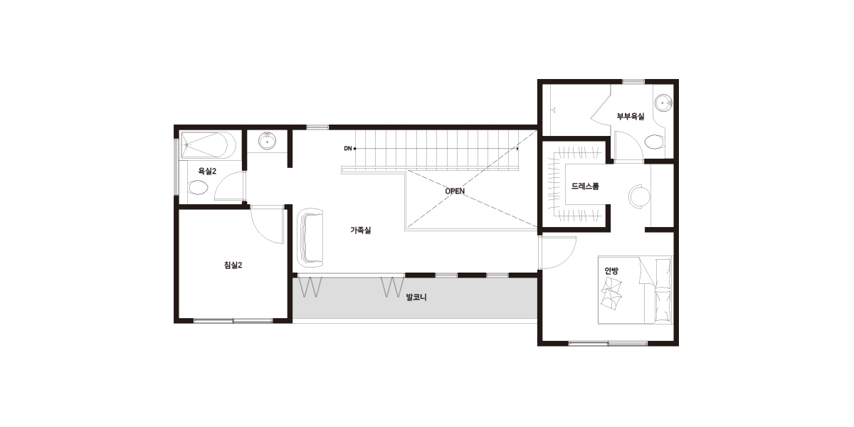
Design concept04 공간구성
Floor Plan| 1F | 1층 구성: 현관, 익스트림 수납, 거실, 주방/식당, 침실1, 욕실, 다용도실, 보일러실 |
|---|
| 2F | 2층 구성: 가족실, 안방, 드레스룸, 부부욕실, 침실2, 욕실 |
|---|