HOME - 지성갤러리 > 설계갤러리 Mediterranean 68평형
목조 지중해
전형적인 지중해풍의 모델로 고풍스러운 아늑함이 돋보임
외관의 디자인을 심플하게 구성하여 유행을 타지 않는 디자인으로 승화
01 외부투시도
Bird's-eye view
02 건축개요
Housing Summary| 총면적 | 224.46㎡ (67.90py) | 구조 | 경량목구조 |
|---|---|---|---|
| 1층면적 | 135.96㎡ (41.13py) | 지붕 | 스페니쉬기와 |
| 2층면적 | 88.50㎡ (26.77py) | 외부마감 | 스타코, 인조석 |
| 3층면적 | - | 내부마감 | LG실크벽지, LG강화마루 |
| 1층포치 / 데크 | 44.60㎡ (13.49py) / - | 창호 | 시스템창호 |
| 2층발코니 / 베란다 | 10.20㎡ (3.09py) | 다락 / 거실오픈 | - / 1층 오픈 |
| 3층발코니 / 베란다 | - |
03 설계컨셉
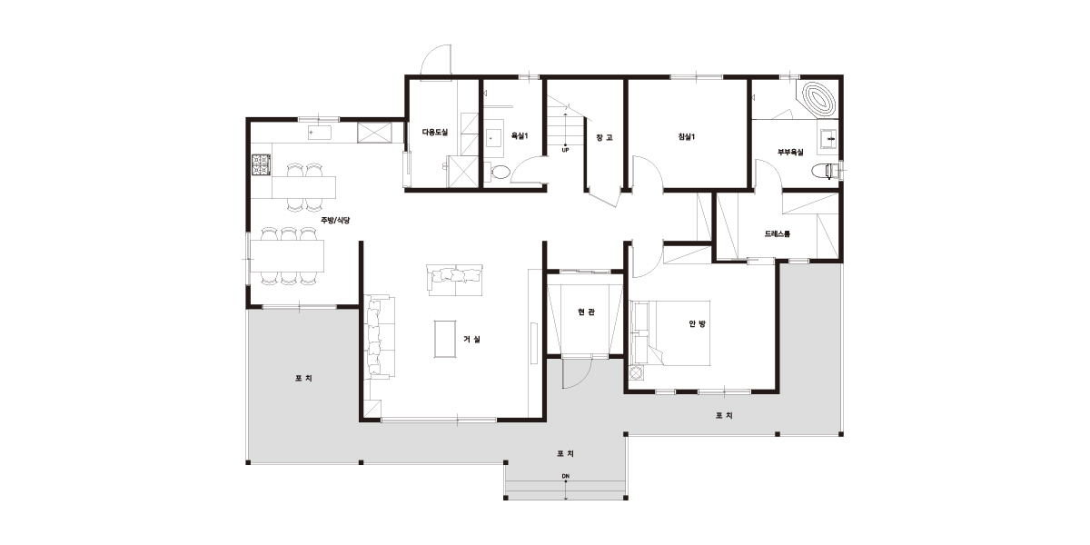
Design concept04 공간구성
Floor Plan| 1F | 1층 구성: 주방, 식사실, 거실, 다용도실, 욕실, 현관, 안방, 드레스룸, 부부욕실, 침실1 |
|---|
| 2F | 2층 구성: 침실2, 침실3, 가족실, 주방/식당, 욕실 |
|---|