HOME - 지성갤러리 > 설계갤러리 Modern 45평형
목조 모던
공용 공간은 남향으로 배치하여 조망권 확보
리얼징크를 이용한 모던한 스타일의 도시적인 주택 이미지 구현
01 외부투시도
Bird's-eye view
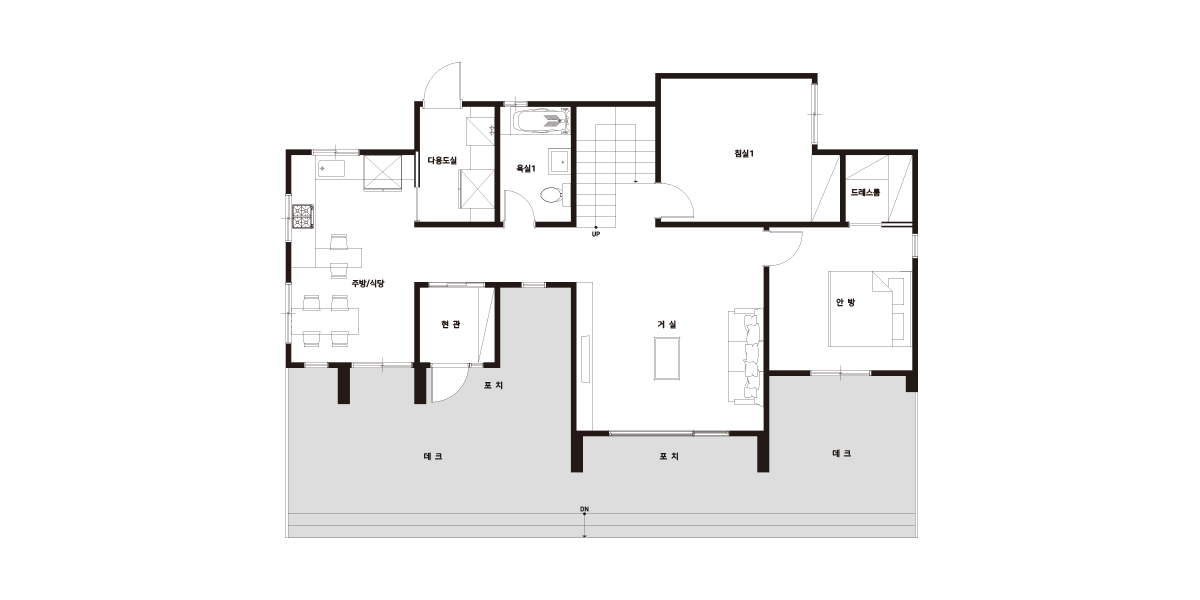
02 건축개요
Housing Summary| 총면적 | 148.15㎡ (44.82py) | 구조 | 경량목구조 |
|---|---|---|---|
| 1층면적 | 102.39㎡ (30.97py) | 지붕 | 리얼징크 |
| 2층면적 | 45.76㎡ (13.84py) | 외부마감 | 스타코, 리얼징크, 인조석 |
| 3층면적 | - | 내부마감 | LG실크벽지, LG강화마루 |
| 1층포치 / 데크 | - / 52.62㎡ (15.92py) | 창호 | 시스템창호 |
| 2층발코니 / 베란다 | 10.05㎡ (3.04py) | 다락 / 거실오픈 | - / 1층 오픈 |
| 3층발코니 / 베란다 | - |
03 설계컨셉
Design concept04 공간구성
Floor Plan| 1F | 1층 구성: 주방, 식사실, 현관, 다용도실, 욕실, 거실, 침실1, 안방, 드레스룸 |
|---|
| 2F | 2층 구성: 침실2, 욕실, 서재 |
|---|