HOME - 지성갤러리 > 설계갤러리 Modern 45평형
목조 모던
수려한 외관 연출
프라이버시 보호를 위해 현관 입구를
외부에서 바로 보이지 않게 계획
01 외부투시도
Bird's-eye view
02 건축개요
Housing Summary| 총면적 | 147.79㎡ (44.71py) | 구조 | 경량목구조 |
|---|---|---|---|
| 1층면적 | 90.00㎡ (27.23py) | 지붕 | 아스팔트싱글, 골강판 |
| 2층면적 | 57.79㎡ (17.48py) | 외부마감 | 골강판, 목재사이딩, 스타코 |
| 3층면적 | - | 내부마감 | LG실크벽지, LG강화마루 |
| 1층포치 / 데크 | 5.04㎡ (1.52py) / 22.44㎡ (6.79py) | 창호 | 시스템창호 |
| 2층발코니 / 베란다 | 4.08㎡ (1.23py) | 다락 / 거실오픈 | - / 2층 오픈 |
| 3층발코니 / 베란다 | - |
03 설계컨셉
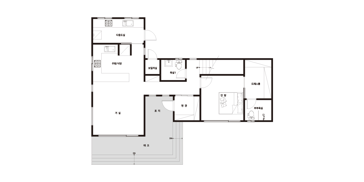
Design concept04 공간구성
Floor Plan| 1F | 1층 구성: 거실, 주방/식당, 다용도실, 안방, 드레스룸, 현관, 욕실 |
|---|
| 2F | 2층 구성: 침실1, 침실2, 가족실, 욕실 |
|---|