HOME - 지성갤러리 > 설계갤러리 Modern 34평형
RC 모던
수평으로 길게 뻗은 평면 계획으로 전실 남향 조망
노출콘크리트와 적삼목의 조화를 통한 시크함과 따뜻함으로 이중적 외관 연출
01 외부투시도
Bird's-eye view
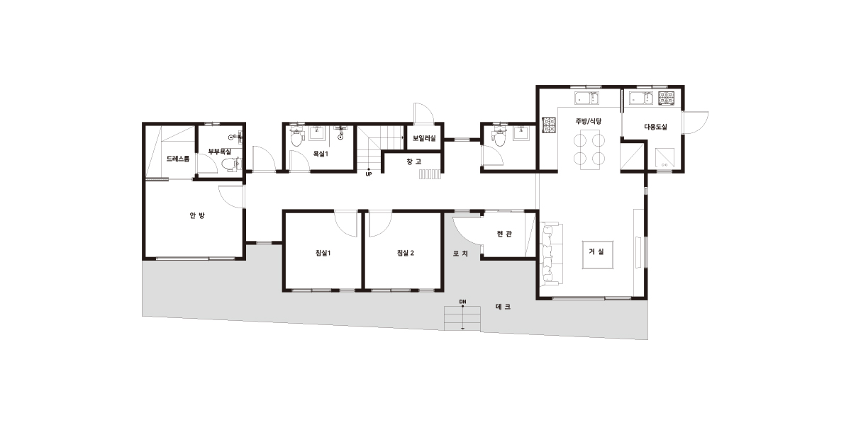
02 건축개요
Housing Summary| 총면적 | 113.27㎡ (34.26py) | 구조 | 철근콘크리트조 |
|---|---|---|---|
| 1층면적 | 113.27㎡ (34.26py) | 지붕 | 노출콘크리트, 아스팔트싱글 |
| 2층면적 | - | 외부마감 | 노출콘크리트, 목재사이딩, 스타코 |
| 3층면적 | - | 내부마감 | LG실크벽지, LG강화마루 |
| 1층포치 / 데크 | 6.30㎡ (1.91py) / 58.41㎡ (17.67py) | 창호 | 시스템창호 |
| 2층발코니 / 베란다 | - | 다락 / 거실오픈 | 20.79㎡ (6.29py) / - |
| 3층발코니 / 베란다 | - |
03 설계컨셉
Design concept04 공간구성
Floor Plan| 1F | 1층 구성: 거실, 주방/식당, 다용도실, 안방, 드레스룸, 침실1, 침실2, 현관, 욕실 |
|---|
| 2F | 2층 구성: 다락 |
|---|