HOME - 지성갤러리 > 설계갤러리 Classic 26평형
목조 클래식
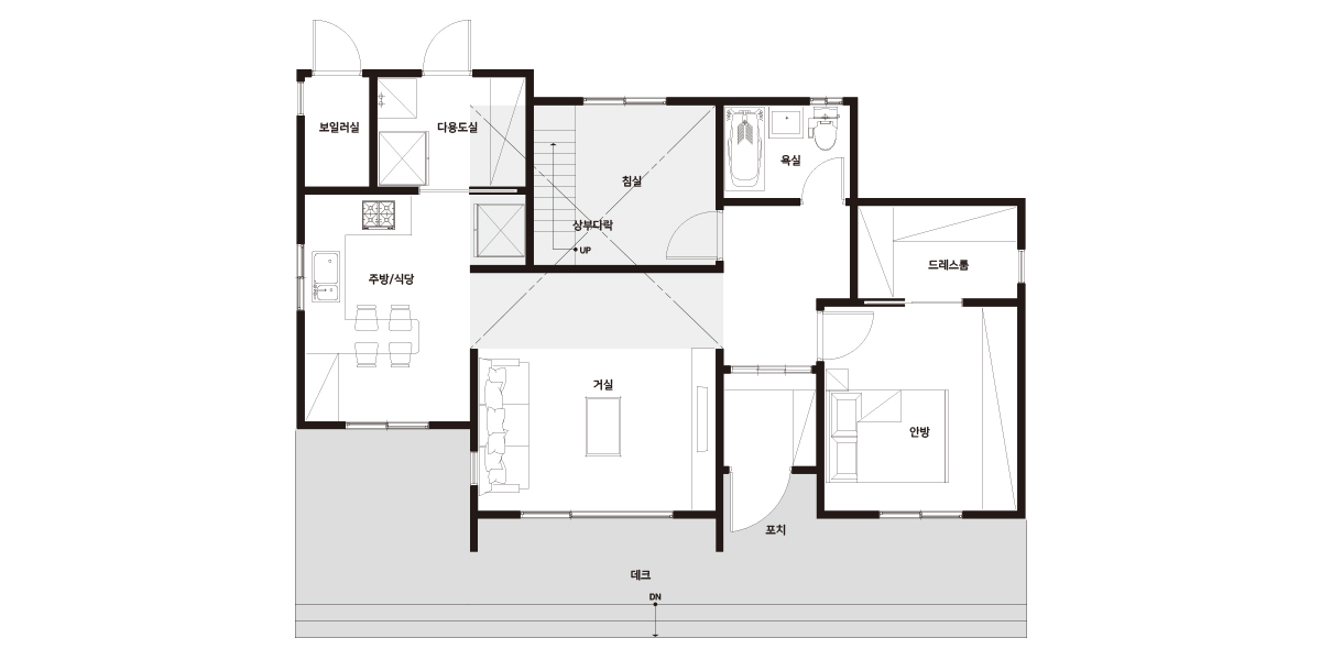
다락 설치로 인한 수납공간 확보 및 다목적공간 부여
외관 좌,우로 사선을 주어 심플한 외관에 포인트를 부여함
01 외부투시도
Bird's-eye view
02 건축개요
Housing Summary| 총면적 | 85.71㎡ (25.93py) | 구조 | 경량목구조 |
|---|---|---|---|
| 1층면적 | 85.71㎡ (25.93py) | 지붕 | 아스팔트싱글 |
| 2층면적 | - | 외부마감 | 스타코, 파벽돌, 리얼징크 |
| 3층면적 | - | 내부마감 | LG실크벽지, LG강화마루 |
| 1층포치 / 데크 | 1.44㎡ (0.44py) / 25.75㎡ (7.79py) | 창호 | 시스템창호 |
| 2층발코니 / 베란다 | - | 다락 / 거실오픈 | 19.80㎡ (5.99py) / 1층 오픈 |
| 3층발코니 / 베란다 | - |
03 설계컨셉
Design concept04 공간구성
Floor Plan| 1F | 1층 구성: 거실, 주방/식당, 다용도실, 안방, 침실, 드레스룸, 욕실, 현관, 보일러실 |
|---|
| 2F | 2층 구성: - |
|---|