HOME - 지성갤러리 > 설계갤러리 Modern 50평형
충북 증평 나OO님
1층은 직접 거주하는 용도로 사용
2층은 손님들 위주의 용도로 사용
01 외부투시도
Bird's-eye view
02 건축개요
Housing Summary| 총면적 | 183.39㎡ (55.48py) | 구조 | 철근콘크리트조 |
|---|---|---|---|
| 1층면적 | 114.72㎡ (34.70py) | 지붕 | 알루미늄징크 |
| 2층면적 | 68.72㎡ (20.77py) | 외부마감 | 알루미늄징크, 스타코, 탄화목사이딩 |
| 3층면적 | - | 내부마감 | LG실크벽지, LG강화마루 |
| 1층포치 / 데크 | 5.44㎡ (1.65py) / 27.68㎡ (8.37py) | 창호 | 시스템창호 |
| 2층발코니 / 베란다 | 22.80㎡ (6.90py) | 다락 / 거실오픈 | - / 1.5층 오픈 |
| 3층발코니 / 베란다 | - |
03 설계컨셉
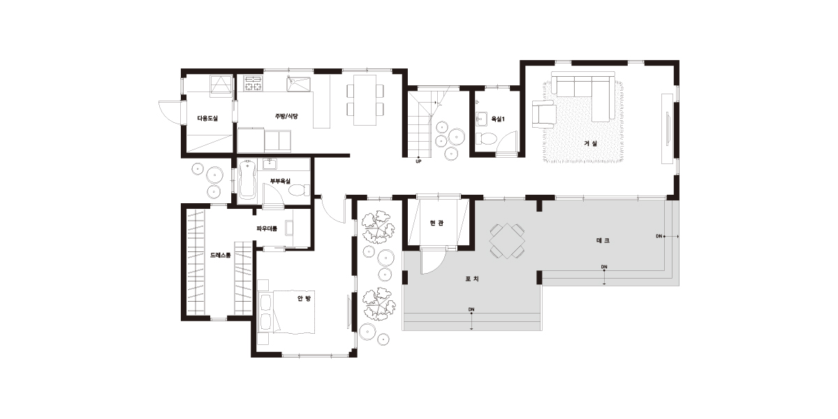
Design concept04 공간구성
Floor Plan| 1F | 1층 구성: 현관, 거실, 주방, 식당, 다용도실, 안방, 드레스룸, 부부욕실, 침실1, 욕실1 |
|---|
| 2F | 2층 구성: 침실2, 드레스룸, 욕실2, 다과실 |
|---|