HOME - 지성갤러리 > 설계갤러리 Classic 42평형
경북 성주 이OO님
외부 공간과의 연계를 위한 충분한 포치 공간 확보
클래식 스타일의 깔끔한 외관과 멋스러운 모임지붕의 조화
01 외부투시도
Bird's-eye view
02 건축개요
Housing Summary| 총면적 | 137.85㎡ (41.70py) | 구조 | 경량목구조 |
|---|---|---|---|
| 1층면적 | 98.95㎡ (29.93py) | 지붕 | 아스팔트싱글 |
| 2층면적 | 38.90㎡ (11.77py) | 외부마감 | 테라코트(플렉시텍스), 파벽돌, 적삼목 |
| 3층면적 | - | 내부마감 | LG실크벽지, LG강화마루 |
| 1층포치 / 데크 | 6.80㎡ (2.06py) / 24.30㎡ (7.35py) | 창호 | 시스템창호 |
| 2층발코니 / 베란다 | 15.99㎡ (4.84py) | 다락 / 거실오픈 | 13.20㎡ (3.99py) / 1층 오픈 |
| 3층발코니 / 베란다 | - |
03 설계컨셉
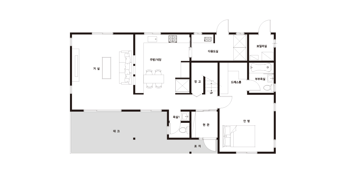
Design concept04 공간구성
Floor Plan| 1F | 1층 구성: 거실, 주방, 다용도실, 안방, 드레스룸, 욕실, 현관, 보일러실, 창고 |
|---|
| 2F | 2층 구성: 침실1, 침실2, 욕실 |
|---|