HOME - 지성갤러리 > 설계갤러리 Classic 40평형
경기 양평 박OO님
건축주의 라이프 스타일에 맞춘 안방 및 실내구성
일본식 모던 느낌의 심플함과 고급스런 이미지 강조
01 외부투시도
Bird's-eye view
02 건축개요
Housing Summary| 총면적 | 132.29㎡ (40.02py) | 구조 | 경량목구조 |
|---|---|---|---|
| 1층면적 | 94.51㎡ (28.59py) | 지붕 | 아스팔트싱글 |
| 2층면적 | 37.78㎡ (11.43py) | 외부마감 | 테라코트(플렉시텍스), 파벽돌, 세라믹사이딩 |
| 3층면적 | - | 내부마감 | LG실크벽지, LG강화마루 |
| 1층포치 / 데크 | 11.00㎡ (3.33py) / 48.76㎡ (14.75py) | 창호 | 시스템창호 |
| 2층발코니 / 베란다 | 21.00㎡ (6.35py) | 다락 / 거실오픈 | 13.20㎡ (3.99py) / 2층 오픈 |
| 3층발코니 / 베란다 | - |
03 설계컨셉
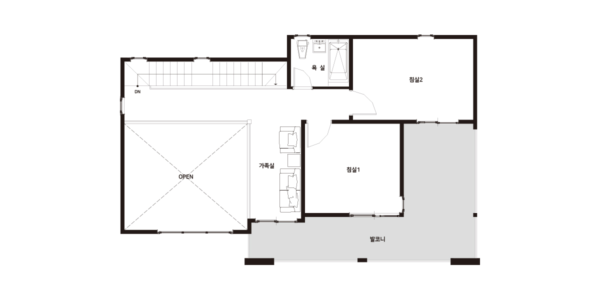
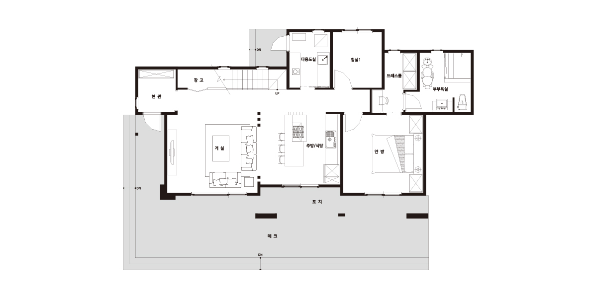
Design concept04 공간구성
Floor Plan| 1F | 1층 구성: 거실, 주방/식당, 다용도실, 안방, 침실1, 드레스룸, 욕실, 현관, 창고 |
|---|
| 2F | 2층 구성: 침실2, 욕실, 다락, 간이응접실 |
|---|