HOME - 지성갤러리 > 설계갤러리 Classic 48평형
목조 클래식
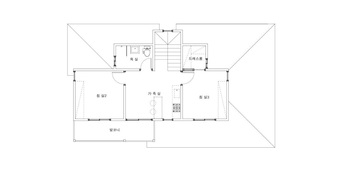
넓은 발코니와 2층 가족실에 조리 공간을 두어 2가구도 충분히 거주 가능
발코니 기둥을 포인트로 심플하면서도 고급스러운 이미지 연출
01 외부투시도
Bird's-eye view
02 건축개요
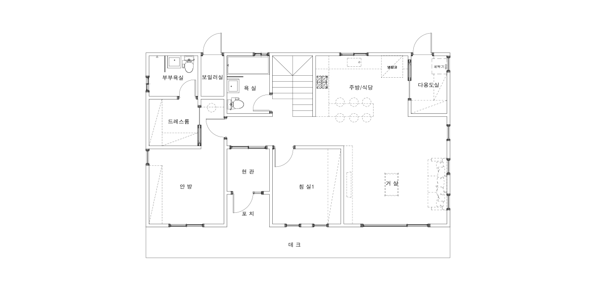
Housing Summary| 총면적 | 160.14㎡ (48.44py) | 구조 | 경량목구조 |
|---|---|---|---|
| 1층면적 | 106.66㎡ (32.26py) | 지붕 | 아스팔트싱글 |
| 2층면적 | 53.48㎡ (16.18py) | 외부마감 | 테라코트(플렉시텍스), 적삼목, 인조석 |
| 3층면적 | - | 내부마감 | LG실크벽지, LG강화마루 |
| 1층포치 / 데크 | 3.15㎡ (0.95py) / 20.85㎡ (6.31py) | 창호 | 시스템창호 |
| 2층발코니 / 베란다 | 8.55㎡ (2.59py) | 다락 / 거실오픈 | - / 1층 오픈 |
| 3층발코니 / 베란다 | - |
03 설계컨셉
Design concept04 공간구성
Floor Plan| 1F | 1층 구성: 거실, 주방/식당, 다용도실, 안방, 드레스룸, 부부욕실, 보일러실, 욕실, 침실1 |
|---|
| 2F | 2층 구성: 침실2, 침실3, 가족실, 욕실, 드레스룸 |
|---|