HOME - 지성갤러리 > 설계갤러리 Mediterranean 51평형
목조 지중해
거실에서 뒷마당으로 출입을 가능하게 하여 맞바람 효과 부여
2층의 넓은 발코니에서 식사 및 티타임의 공간 확보
01 외부투시도
Bird's-eye view
02 건축개요
Housing Summary| 총면적 | 170.02㎡ (51.43py) | 구조 | 경량목구조 |
|---|---|---|---|
| 1층면적 | 109.73㎡ (33.19py) | 지붕 | 스페니쉬기와 |
| 2층면적 | 60.29㎡ (18.24py) | 외부마감 | 스타코, 인조석 |
| 3층면적 | - | 내부마감 | LG실크벽지, LG강화마루 |
| 1층포치 / 데크 | 22.00㎡ (6.66py) / 11.80㎡ (3.57py) | 창호 | 시스템창호 |
| 2층발코니 / 베란다 | 17.75㎡ (5.37py) | 다락 / 거실오픈 | - / 1층 오픈 |
| 3층발코니 / 베란다 | - |
03 설계컨셉
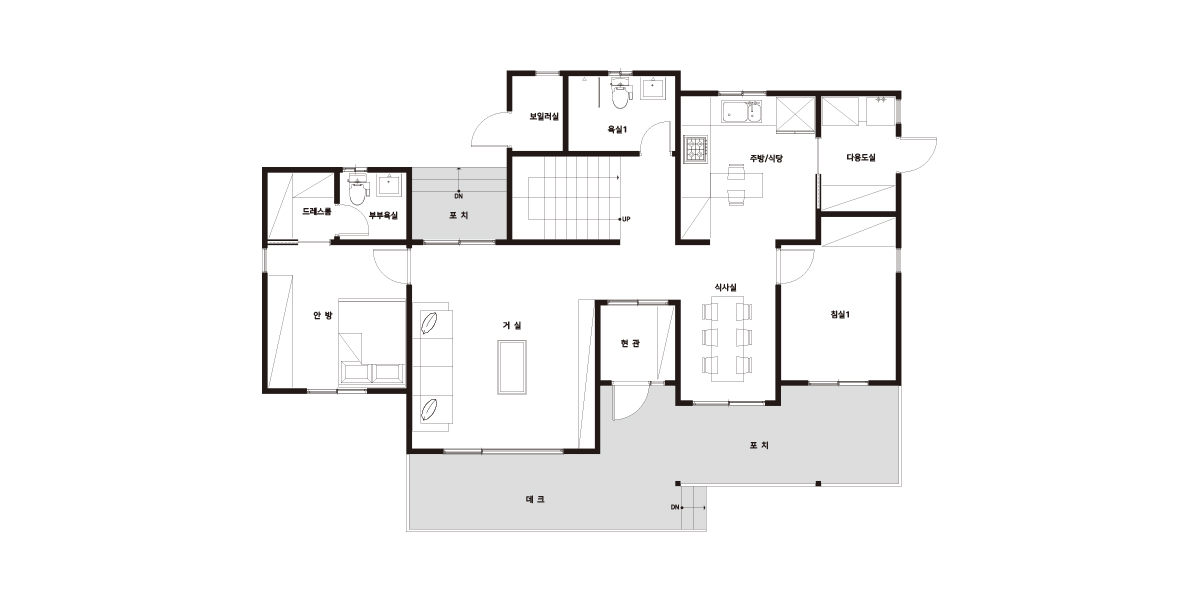
Design concept04 공간구성
Floor Plan| 1F | 1층 구성: 안방, 드레스룸, 부부욕실, 거실, 현관, 보일러실, 욕실, 식사실, 주방, 침실, 다용도실 |
|---|
| 2F | 2층 구성: 가족실, 욕실, 침실1, 침실2 |
|---|