HOME - 지성갤러리 > 설계갤러리 Classic 48평형
전북 남원 김OO님 (제39회 MBC건축박람회)
넓은 공용 공간 구성으로 가족들간 소통에 중점
세련되고 품위 있는 일본식 모던풍 디자인
01 외부투시도
Bird's-eye view
02 건축개요
Housing Summary| 총면적 | 158.37㎡ (47.91py) | 구조 | 경량목구조 |
|---|---|---|---|
| 1층면적 | 98.09㎡ (29.67py) | 지붕 | 금속기와 |
| 2층면적 | 60.28㎡ (18.23py) | 외부마감 | 스타코, 탄화목사이딩, 청고벽돌 |
| 3층면적 | - | 내부마감 | LG실크벽지, LG강화마루 |
| 1층포치 / 데크 | - / 20.78㎡ (6.29py) | 창호 | 시스템창호 |
| 2층발코니 / 베란다 | 16.47㎡ (4.98py) | 다락 / 거실오픈 | - / 2층 오픈 |
| 3층발코니 / 베란다 | - |
03 설계컨셉
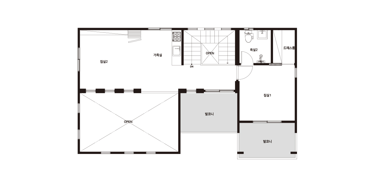
Design concept04 공간구성
Floor Plan| 1F | 1층 구성: 거실, 주방/식당, 다용도실, 창고, 현관, 안방, 드레스룸, 욕실, 창고 |
|---|
| 2F | 2층 구성: 침실/놀이방, 가족실, 침실, 욕실 |
|---|