HOME - 지성갤러리 > 설계갤러리 Modern 104평형
수익형 RC 모던
전면부에 커튼월을 제작하여 세련 된 이미지 강조
다이나믹한 커튼월의 좌우 배치
01 외부투시도
Bird's-eye view
02 건축개요
Housing Summary| 총면적 | 344.90㎡ (104.33py) | 구조 | 철근콘크리트조 |
|---|---|---|---|
| 1층면적 | 89.31㎡ (27.02py) | 지붕 | 평슬라브 |
| 2층면적 | 89.31㎡ (27.02py) | 외부마감 | 스타코, 노출콘크리트 |
| 3층면적 | 83.14㎡ (25.15py) / 4층 : 83.14㎡ (25.15py) | 내부마감 | LG실크벽지, LG강화마루 |
| 1층포치 / 데크 | - | 창호 | 시스템창호 |
| 2층발코니 / 베란다 | - | 다락 / 거실오픈 | - |
| 3층발코니 / 베란다 | - |
03 설계컨셉
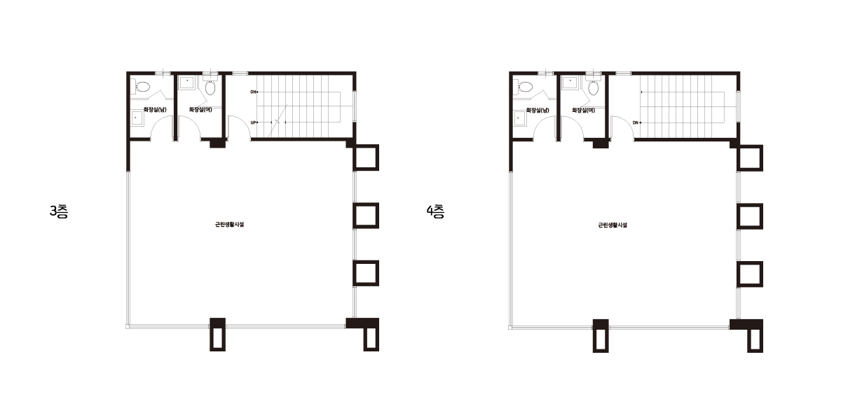
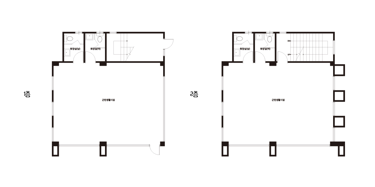
Design concept04 공간구성
Floor Plan| 1F | 1층 구성: 근린생활시설, 화장실(남,여) / 2층 구성: 근린생활시설, 화장실(남,여) |
|---|
| 2F | 2층 구성: X / 3층 구성: 근린생활시설, 화장실(남,여) / 4층 구성: 근린생활시설,화장실(남,여) |
|---|