HOME - 지성갤러리 > 설계갤러리 Modern 37평형
RC 모던
전형적인 모던 형태로 심플한 디자인
전면부 각 실에 포치를 두어 비가림 역할 및 외부 연계 공간 부여
01 외부투시도
Bird's-eye view
02 건축개요
Housing Summary| 총면적 | 121.34㎡ (36.71py) | 구조 | 철근콘크리트조 |
|---|---|---|---|
| 1층면적 | 121.34㎡ (36.71py) | 지붕 | 평슬라브 |
| 2층면적 | - | 외부마감 | 노출콘크리트, 세라믹사이딩 |
| 3층면적 | - | 내부마감 | LG실크벽지, LG강화마루 |
| 1층포치 / 데크 | 57.24㎡ (17.32py) / 8.48㎡ (2.57py) | 창호 | 시스템창호 |
| 2층발코니 / 베란다 | - | 다락 / 거실오픈 | - / 1.5층 오픈 |
| 3층발코니 / 베란다 | - |
03 설계컨셉
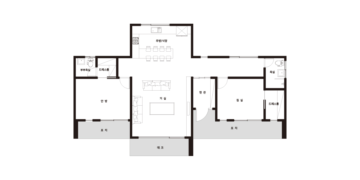
Design concept04 공간구성
Floor Plan| 1F | 1층 구성: 안방, 부부욕실, 드레스룸, 거실, 주방/식당, 현관, 침실, 드레스룸, 욕실 |
|---|
| 2F | 2층 구성: - |
|---|