HOME - 지성갤러리 > 설계갤러리 Modern 44평형
목조 모던
사선의 조합으로 연출된 다이나믹한 외관
주차공간을 확보하여 건물과의 일체화 구현
01 외부투시도
Bird's-eye view
02 건축개요
Housing Summary| 총면적 | 144.12㎡ (43.60py) | 구조 | 경량목구조 |
|---|---|---|---|
| 1층면적 | 91.20㎡ (27.59py) | 지붕 | 아스팔트싱글 |
| 2층면적 | 52.92㎡ (16.01py) | 외부마감 | 스타코, 세라믹사이딩, 리얼징크 |
| 3층면적 | - | 내부마감 | LG실크벽지, LG강화마루 |
| 1층포치 / 데크 | 31.18㎡ (9.43py) / 11.76㎡ (3.56py) | 창호 | 시스템창호 |
| 2층발코니 / 베란다 | 18.20㎡ (5.51py) | 다락 / 거실오픈 | - / 1층 오픈 |
| 3층발코니 / 베란다 | - |
03 설계컨셉
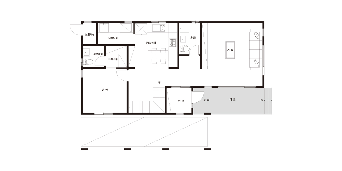
Design concept04 공간구성
Floor Plan| 1F | 1층 구성: 안방, 드레스룸, 부부욕실, 주방/식당, 다용도실, 보일러실, 현관, 욕실, 거실 |
|---|
| 2F | 2층 구성: 가족실, 서재, 욕실, 창고, 침실 |
|---|