HOME - 지성갤러리 > 설계갤러리 Mediterranean 46평형
목조 지중해
메인 공간을 남향으로 배치하여 조망 확보
스타코와 인조석의 조합으로 웅장하면서도 고풍스런 이미지 연출
01 외부투시도
Bird's-eye view
02 건축개요
Housing Summary| 총면적 | 151.40㎡ (45.80py) | 구조 | 경량목구조 |
|---|---|---|---|
| 1층면적 | 101.30㎡ (30.64py) | 지붕 | 스페니쉬기와 |
| 2층면적 | 50.10㎡ (15.16py) | 외부마감 | 스타코, 인조석 |
| 3층면적 | - | 내부마감 | LG실크벽지, LG강화마루 |
| 1층포치 / 데크 | 16.80㎡ (5.08py) / 33.96㎡ (10.27py) | 창호 | 시스템창호 |
| 2층발코니 / 베란다 | 7.20㎡ (2.18py) | 다락 / 거실오픈 | - / 2층 오픈 |
| 3층발코니 / 베란다 | - |
03 설계컨셉
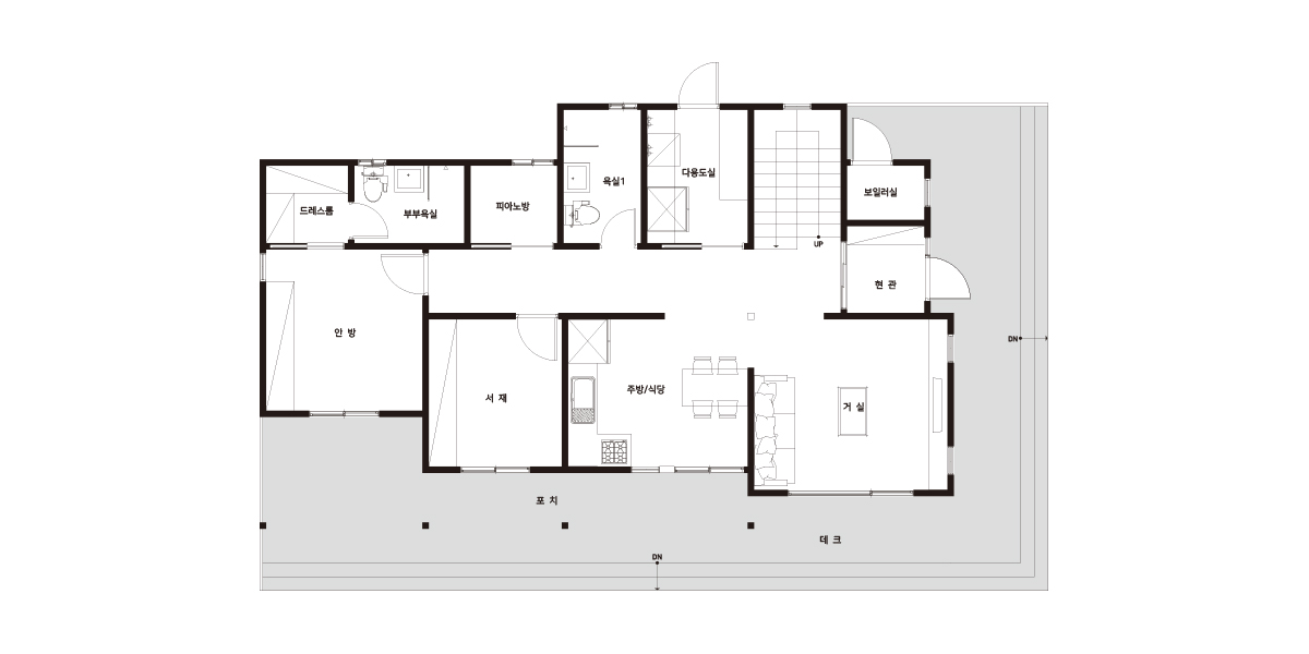
Design concept04 공간구성
Floor Plan| 1F | 1층 구성: 안방, 드레스룸, 부부욕실, 피아노방, 서재, 주방/식당, 거실, 현관, 보일러실, 다용도실, 욕실 |
|---|
| 2F | 2층 구성: 침실1, 침실2, 욕실, 가족실 |
|---|