HOME - 지성갤러리 > 설계갤러리 Mediterranean 39평형
목조 지중해
거실을 중심으로 한 좌우 방 배치로 각 방의 독립성 확보
거실 외벽의 다이나믹한 마감으로 단조로움 해소
01 외부투시도
Bird's-eye view
02 건축개요
Housing Summary| 총면적 | 129.07㎡ (39.04py) | 구조 | 경량목구조 |
|---|---|---|---|
| 1층면적 | 98.27㎡ (29.73py) | 지붕 | 스페니쉬기와 |
| 2층면적 | 30.80㎡ (9.32py) | 외부마감 | 스타코, 인조석, 적삼목 |
| 3층면적 | - | 내부마감 | LG실크벽지, LG강화마루 |
| 1층포치 / 데크 | 7.84㎡ (2.37py) / 10.31㎡ (3.12py) | 창호 | 시스템창호 |
| 2층발코니 / 베란다 | 7.84㎡ (2.37py) | 다락 / 거실오픈 | - / 2층 오픈 |
| 3층발코니 / 베란다 | - |
03 설계컨셉
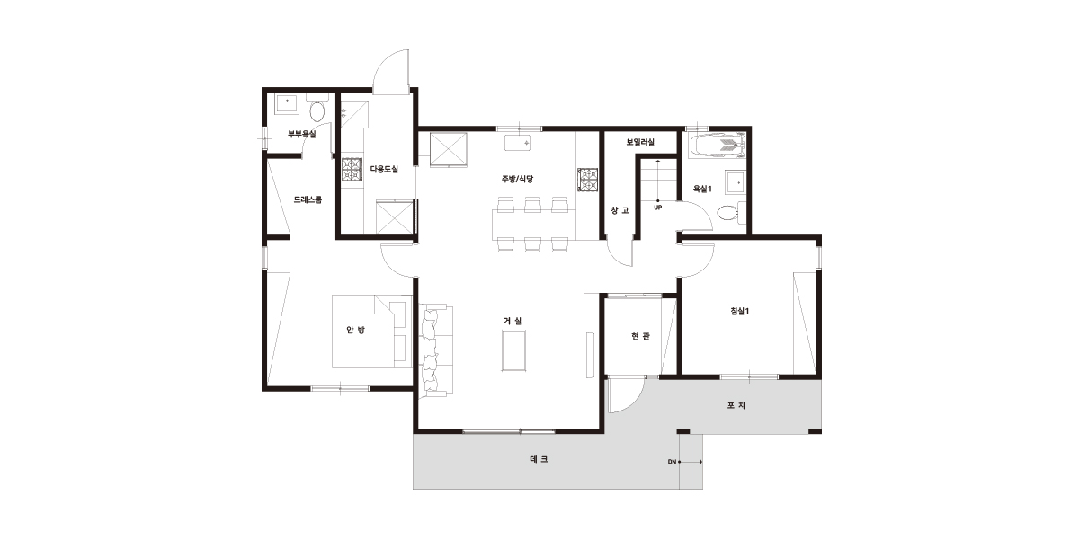
Design concept04 공간구성
Floor Plan| 1F | 1층 구성: 거실, 주방식당, 다용도실, 부부욕실, 드레스룸, 안방, 현관, 침실1, 욕실 |
|---|
| 2F | 2층 구성: 침실2, 가족실, 욕실 |
|---|