HOME - 지성갤러리 > 설계갤러리 Mediterranean 51평형
목조 지중해
2층으로 오르는 웅장한 계단이 메인포인트 역할
오픈천정을 가로 지르는 브릿지 형식의 복도로 동측 조망 최대한 확보
01 외부투시도
Bird's-eye view
02 건축개요
Housing Summary| 총면적 | 168.54㎡ (50.98py) | 구조 | 경량목구조 |
|---|---|---|---|
| 1층면적 | 94.56㎡ (28.60py) | 지붕 | 스페니쉬기와 |
| 2층면적 | 73.98㎡ (22.38py) | 외부마감 | 스타코, 인조석 |
| 3층면적 | - | 내부마감 | LG실크벽지, LG강화마루 |
| 1층포치 / 데크 | 16.25㎡ (4.92py) / 4.90㎡ (1.48py) | 창호 | 시스템창호 |
| 2층발코니 / 베란다 | 6.20㎡ (1.88py) | 다락 / 거실오픈 | - / 2층 오픈 |
| 3층발코니 / 베란다 | - |
03 설계컨셉
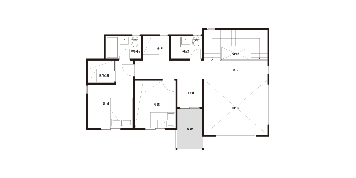
Design concept04 공간구성
Floor Plan| 1F | 1층 구성: 주방/식당, 다용도실, 침실, 보일러실, 욕실, 현관, 거실 |
|---|
| 2F | 2층 구성: 안방, 드레스룸, 부부욕실, 홈바, 침실1, 가족실, 욕실 |
|---|