HOME - 지성갤러리 > 설계갤러리 Classic 30평형
목조 클래식
투톤의 스타코에 의한 좌우 분리효과
다락의 설치로 부족한 수납공간 해결 및 놀이방 공간 부여
01 외부투시도
Bird's-eye view
02 건축개요
Housing Summary| 총면적 | 98.85㎡ (29.90py) | 구조 | 경량목구조 |
|---|---|---|---|
| 1층면적 | 98.85㎡ (29.90py) | 지붕 | 아스팔트싱글 |
| 2층면적 | - | 외부마감 | 스타코, 적삼목 |
| 3층면적 | - | 내부마감 | LG실크벽지, LG강화마루 |
| 1층포치 / 데크 | 1.90㎡ (0.57py) / 10.78㎡ (3.26py) | 창호 | 시스템창호 |
| 2층발코니 / 베란다 | - | 다락 / 거실오픈 | 16.92㎡ (5.12py) / 1층 오픈 |
| 3층발코니 / 베란다 | - |
03 설계컨셉
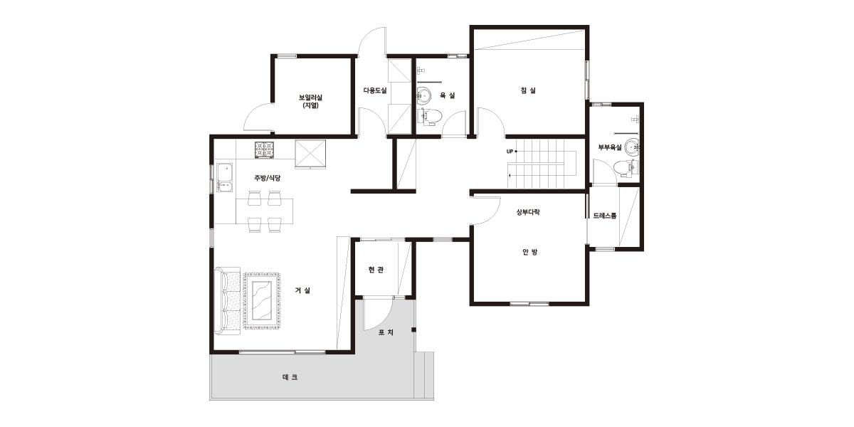
Design concept04 공간구성
Floor Plan| 1F | 1층 구성: 거실, 주방/식당, 보일러실, 현관, 다용도실, 욕실, 침실, 안방, 드레스룸, 부부욕실 |
|---|
| 2F | 2층 구성: - |
|---|