HOME - 지성갤러리 > 완공갤러리 
Modern 42평형
모던하우스 경기 양평
그레이색의 파벽돌과 세라믹사이딩으로 포인트를 준 세련된 모던주택입니다.



01 담당 현장 직원
Manager in Field


02 건축개요
Housing Summary| 총면적 | 141.82㎡ (42.9py) | 구조 | 경량목구조 |
|---|---|---|---|
| 1층면적 | 86.44㎡ (26.15py) | 지붕 | 아스팔트슁글 |
| 2층면적 | 55.38㎡ (16.75py) | 외부마감 | 스타코, 목재사이딩, 세라믹사이딩, 파벽돌 |
| 3층면적 | - | 내부마감 | LG실크벽지, LG강화마루 |
| 1층포치 / 데크 | 2.64㎡ (0.80py) / 29.22㎡ (8.85py) | 창호 | 시스템창호 |
| 2층발코니 / 베란다 | 9.1㎡ (2.75py) | 다락 / 거실오픈 | - / 2층오픈 |
| 3층발코니 / 베란다 |
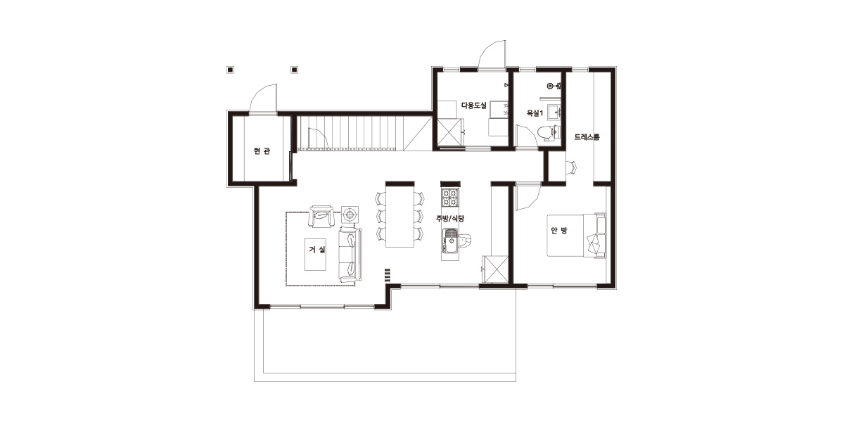
03 공간구성
Floor Plan| 1F | 1층 구성: 현관, 거실, 주방/식당, 다용도실, 욕실, 드레스룸, 안방 |
|---|
| 2F | 2층 구성: 방1, 방2, 서재, 욕실, 발코니 |
|---|
04 완공사진
Completion Photo