HOME - 지성갤러리 > 완공갤러리 
classic 30평형
클래식하우스 경기 양주
3010주택 앞에 위치한 텃밭을 가꾸는 재미가 쏠쏠한 주택입니다.



01 담당 현장 직원
Manager in Field


02 건축개요
Housing Summary| 총면적 | 99.47㎡ (30.08py) | 구조 | 경량목구조 |
|---|---|---|---|
| 1층면적 | 71.25㎡ (21.55py) | 지붕 | 아스팔트슁글 |
| 2층면적 | 28.22㎡ (8.53py) | 외부마감 | 스타코, 파벽돌 |
| 3층면적 | - | 내부마감 | LG실크벽지, LG강화마루 |
| 1층포치 / 데크 | 5.67㎡ (1.71py) / 19.87㎡ (6.01py) | 창호 | 시스템창호 |
| 2층발코니 / 베란다 | - / 4.00㎡ (01.21py) | 다락 / 거실오픈 | - |
| 3층발코니 / 베란다 | - |
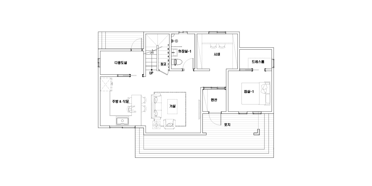
03 공간구성
Floor Plan| 1F | 1층 구성: 현관, 침실1, 서재, 화장실1, 거실, 다용도실, 주방/식당, 보일러실 |
|---|
| 2F | 2층 구성: 침실2, 드레스룸, 화장실, 베란다 |
|---|
04 완공사진
Completion Photo