HOME - 지성갤러리 > 완공갤러리 
Modern 61평형
모던하우스 경기 화성
모던 스타일의 심플한 외관이 특징입니다.
1층의 넓은 포치는 외부 공간의 활용성을 최대화 하였습니다.



01 담당 현장 직원
Manager in Field


02 건축개요
Housing Summary| 총면적 | 200.91㎡ (60.77py) | 구조 | 경량목구조 |
|---|---|---|---|
| 1층면적 | 90.15㎡ (27.27py) | 지붕 | 아스팔트 슁글 |
| 2층면적 | 110.76㎡ (33.50py) | 외부마감 | 테라코트, 세라믹사이딩 |
| 3층면적 | - | 내부마감 | LG실크벽지, LG강화마루 |
| 1층포치 / 데크 | 58.57㎡ (17.72py) / 14.44㎡ (4.37py) | 창호 | 시스템창호 |
| 2층발코니 / 베란다 | 38.25㎡ (11.57py) | 다락 / 거실오픈 | - |
| 3층발코니 / 베란다 | - |
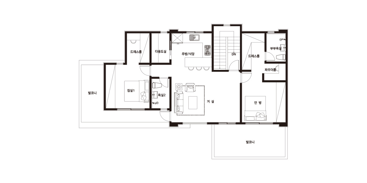
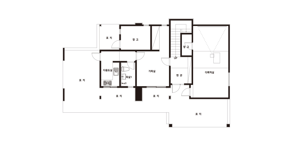
03 공간구성
Floor Plan| 1F | 1층 구성: 현관, 가족실, 욕실1, 다용도실, 창고1, 다목적실, 창고2 |
|---|
| 2F | 2층 구성: 거실, 주방/식당, 욕실2, 다용도실, 침실2, 드레스룸1, 안방, 드레스룸2, 파우더룸, 부부욕실 |
|---|
04 완공사진
Completion Photo