HOME - 지성갤러리 > 완공갤러리 
Modern 68평형
모던하우스 경기 파주
큰규모의 주택과 소규모의 설계로
두동간의 거리를 포치로 연결하여 동간 활용성 극대화 했습니다.
파벽돌과 석재 마감재를 사용하여 고급스런 외관으로 연출됬습니다.
거실 전면 큰창을 사용하여 보다 개방감있는 실내 분위기 연출했습니다.
가벽을 활용하여 건물외관에 다채로움 부여한 고급스러운 주택입니다.



01 담당 현장 직원
Manager in Field


02 건축개요
Housing Summary| 총면적 | 217.51㎡ (65.80py) | 구조 | 경량목구조 |
|---|---|---|---|
| 1층면적 | A동 별채 : 116.40㎡ (35.21py) B동 : 43.69㎡ (13.22py) | 지붕 | 아스팔트 슁글 |
| 2층면적 | A동 : 57.42㎡ (17.37py) | 외부마감 | 테라코트(플렉시텍스), 인조석, 파벽돌 |
| 3층면적 | - | 내부마감 | LG실크벽지, LG강화마루 |
| 1층포치 / 데크 | 10.10㎡ (3.06py) / 36.01㎡ (10.89py) | 창호 | 시스템창호 |
| 2층발코니 / 베란다 | - | 다락 / 거실오픈 | - |
| 3층발코니 / 베란다 | - |
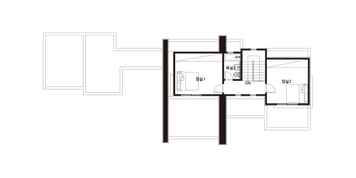
03 공간구성
Floor Plan| 1F | 1층 구성: 현관, 거실, 주방/식당, 다용도실, 안방, 부부욕실, 드레스룸, 욕실1, 창고 |
|---|
| 2F | 2층 구성: 침실1, 침실2, 욕실2 |
|---|
04 완공사진
Completion Photo