HOME - 지성갤러리 > 완공갤러리 
Modern 47평형
모던하우스 인천 강화
심플하면서도 세련된 모던스타일의 주택입니다.
건축주의 라이프스타일에 맞춘 각 실들의 유기적인 구성하고
거실부분에 오픈형 계단을 설치하여 시원스러운 공간감을 부여합니다.
2층 오픈 천정으로 2층 공간의 답답함을 해소한 주택입니다.



01 담당 현장 직원
Manager in Field


02 건축개요
Housing Summary| 총면적 | 154.97㎡ (46.88py) | 구조 | 경량목구조 |
|---|---|---|---|
| 1층면적 | 108.14㎡ (32.71py) | 지붕 | 리얼징크 |
| 2층면적 | 46.83㎡ (14.17py) | 외부마감 | 세라믹사이딩 |
| 3층면적 | - | 내부마감 | LG실크벽지, LG강화마루 |
| 1층포치 / 데크 | 1.46㎡ (0.44py) | 창호 | 시스템창호 |
| 2층발코니 / 베란다 | 7.03㎡ (2.13py) | 다락 / 거실오픈 | - / 2층 오픈 |
| 3층발코니 / 베란다 | - |
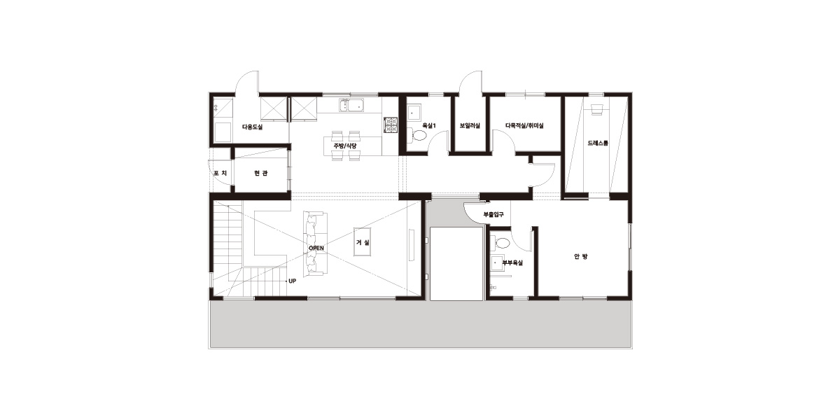
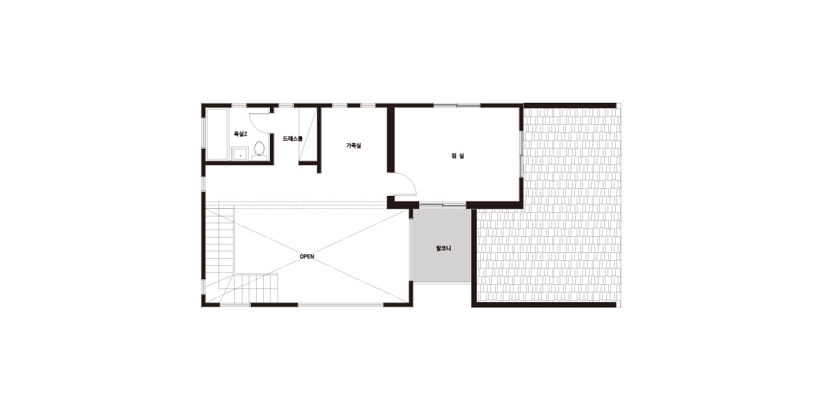
03 공간구성
Floor Plan| 1F | 1층 구성: 현관, 거실, 주방/식당, 다용도실, 안방, 드레스룸, 부부욕실, 다목적실, 침실1, 욕실1, 보일러실 |
|---|
| 2F | 2층 구성: 침실2, 욕실2, 드레스룸, 가족실 |
|---|
04 완공사진
Completion Photo