HOME - 지성갤러리 > 완공갤러리 
RC+Modern 73평형
모던하우스 경남 창원
1층: 근린생활시설/2~3층: 주인세대
대지의 형태에 맞게 건축물 디자인 형성했습니다.
1층 마당을 보완하기 위해 2~3층에 넓은 발코니 부여 하였으며
주거시설의 실내평수를 넓히기 위해 1층 일부에 주거 시설 계획했습니다.
1층은 철근 콘크리트조 2층은 목구조인 하이브리드 구조 입니다.



01 담당 현장 직원
Manager in Field


02 건축개요
Housing Summary| 총면적 | 242.46㎡(73.34py) | 구조 | 철근콘크리트조, 목구조 |
|---|---|---|---|
| 1층면적 | 98.04㎡(29.66py) | 지붕 | 알루미늄 징크 |
| 2층면적 | 90.18㎡(27.28py) | 외부마감 | 알루미늄징크, AXON사이딩, 테라코트(플렉시텍스), 탄화목사이딩 |
| 3층면적 | 54.24㎡ (16.41py) | 내부마감 | LG실크벽지, LG강화마루 |
| 1층포치 / 데크 | 3.97㎡(1.20py) / 8.81㎡(2.67py) | 창호 | 시스템창호 |
| 2층발코니 / 베란다 | 38.87㎡(11.76py) | 다락 / 거실오픈 | - |
| 3층발코니 / 베란다 | - |
03 공간구성
Floor Plan| 1F | 1층 구성: 근린생활시설, 화장실, 창고, 보일러실/주인세대 - 현관, 손님방 |
|---|
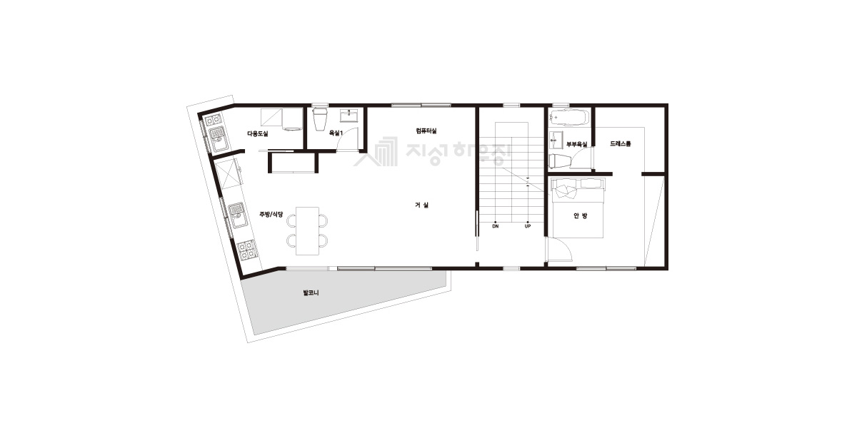
| 2F | 2층 구성: 주인세대 - 거실, 주방, 식당, 다용도실, 컴퓨터실, 안방, 드레스룸, 부부욕실, 욕실1 |
|---|
04 완공사진
Completion Photo