HOME - 지성갤러리 > 완공갤러리 
Mediterranean 41평형
지중해하우스 전북 남원
거실과 주방의 병렬배치 및 거실 상부 2층 오픈으로 시원스러운 공간감으로 연출했습니다.
스페니쉬 기와가 돋보이는 고풍스럽고 웅장한 지중해풍 디자인으로
가족실과 외부 발코니의 연계성 확보한 주택입니다.



01 담당 현장 직원
Manager in Field


02 건축개요
Housing Summary| 총면적 | 136.86㎡ (41.40py) | 구조 | 경량목구조 |
|---|---|---|---|
| 1층면적 | 105.48㎡ (31.91py) | 지붕 | 스페니쉬 기와 |
| 2층면적 | 31.38㎡ (9.49py) | 외부마감 | 스타코, 파벽돌, 목재사이딩 |
| 3층면적 | - | 내부마감 | LG실크벽지, LG강화마루 |
| 1층포치 / 데크 | 16.74㎡ (5.06py) / 20.86㎡ (6.31py) | 창호 | 시스템창호 |
| 2층발코니 / 베란다 | 7.98㎡ (2.41py) | 다락 / 거실오픈 | - / 2층 오픈 |
| 3층발코니 / 베란다 | - |
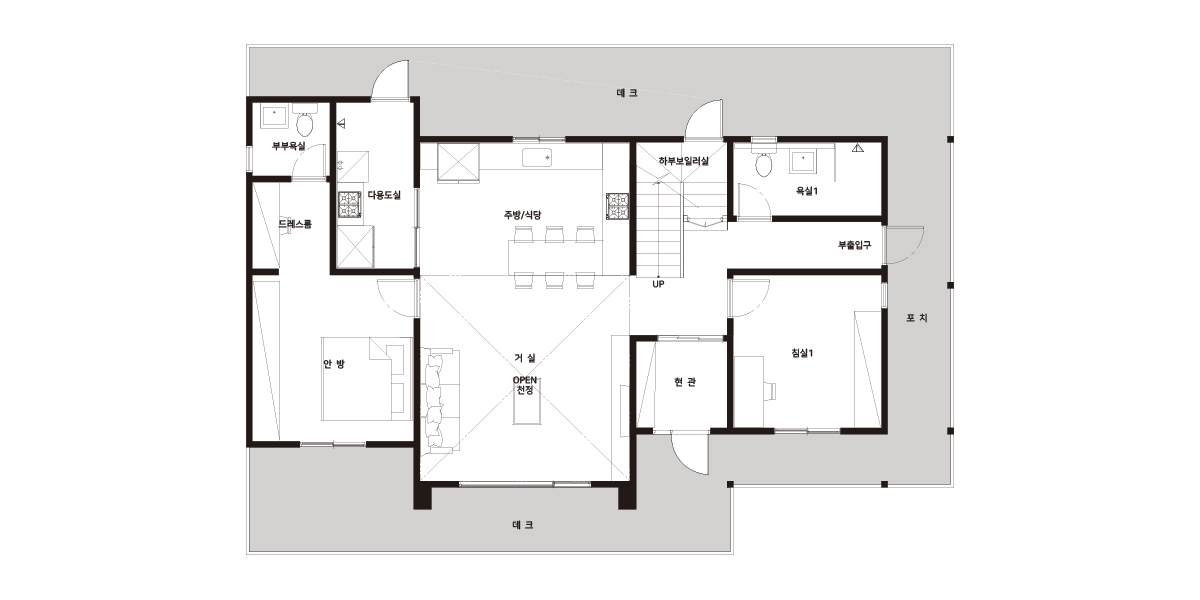
03 공간구성
Floor Plan| 1F | 1층 구성: 현관, 거실, 주방/식당, 다용도실, 안방, 드레스룸, 부부욕실, 침실1, 욕실1, 보일러실 |
|---|
| 2F | 2층 구성: 가족실, 침실2, 욕실2 |
|---|
04 완공사진
Completion Photo