HOME - 지성갤러리 > 완공갤러리 
Modern 57평형
모던하우스 전북 군산
1층은 애견호텔/애견미용 샵, 2층은 가정집으로 사용합니다.
2층의 면적 활용을 최대한으로 하기 위해 현관을 1층에 배치하고
사적인 공간과 공적인 공간을 배려한 현관문을 분리하였습니다.
건축주님의 의견을 최대한 반영한 심플하고 모던한 스타일의 주택입니다.



01 담당 현장 직원
Manager in Field


02 건축개요
Housing Summary| 총면적 | 187.83㎡(56.82py) | 구조 | 경량목구조 |
|---|---|---|---|
| 1층면적 | 86.57㎡(26.19py) | 지붕 | 아스팔트 슁글 |
| 2층면적 | 98.56㎡(29.81py) | 외부마감 | 테라코트(플렉시텍스), 적삼목, 파벽돌 |
| 3층면적 | - | 내부마감 | LG실크벽지, LG강화마루 |
| 1층포치 / 데크 | 5.80㎡(1.75py) / 2.67㎡(0.81py) | 창호 | 시스템창호 |
| 2층발코니 / 베란다 | - | 다락 / 거실오픈 | 10.20㎡(3.09py) |
| 3층발코니 / 베란다 | - |
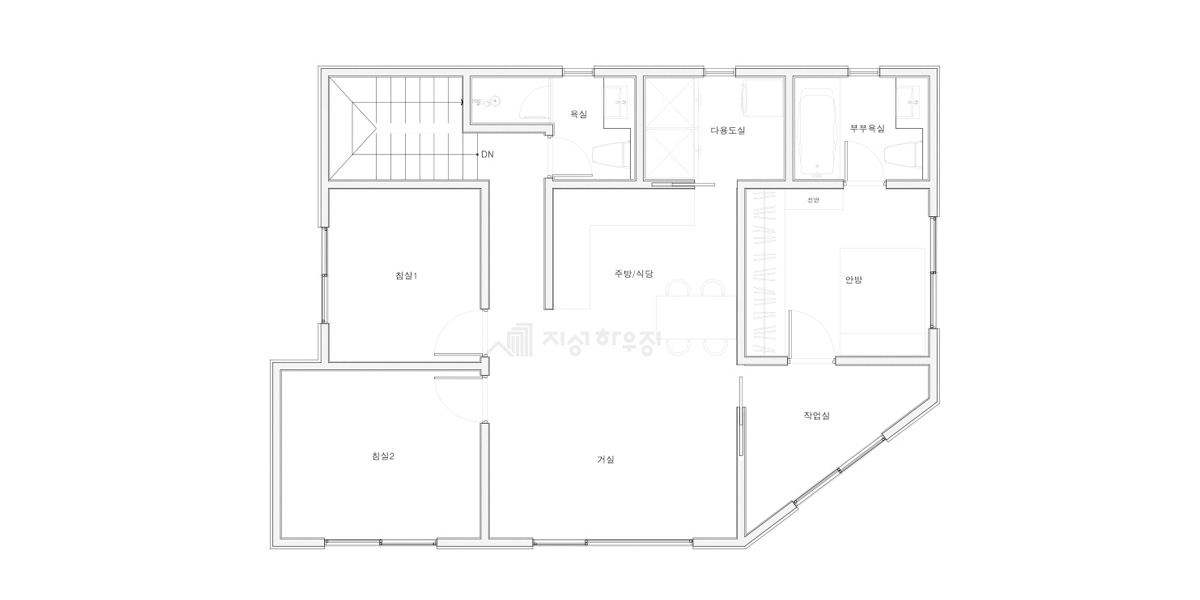
03 공간구성
Floor Plan| 1F | 1층 구성: 로비, 애견호텔, 애견미용, 화장실, 휴게실, 현관, 계단실, 보일러실 |
|---|
| 2F | 2층 구성: 거실, 주방/식당, 다용도실, 작업실, 안방, 드레스룸, 부부욕실, 욕실, 침실1, 침실2 |
|---|
04 완공사진
Completion Photo