HOME - 지성갤러리 > 완공갤러리 
Classic 35평형
클래식하우스 경북 상주
거실과 주방의 분리로 각각의 독립성 최대한확보한
클래식 형태의 고풍스러우면서도 세련된 디자인의 외관을 가진 주택입니다.



01 담당 현장 직원
Manager in Field


02 건축개요
Housing Summary| 총면적 | 116.00㎡ (35.09py) | 구조 | 경량목구조 |
|---|---|---|---|
| 1층면적 | 89.96㎡ (27.21py) | 지붕 | 아스팔트 슁글 |
| 2층면적 | 26.04㎡ (7.88py) | 외부마감 | 테라코트(플렉시텍스), 인조석 |
| 3층면적 | - | 내부마감 | LG실크벽지, LG강화마루 |
| 1층포치 / 데크 | 5.40㎡ (1.63py) / 20.75㎡ (6.28py) | 창호 | 시스템창호 |
| 2층발코니 / 베란다 | 8.28㎡ (2.50py) | 다락 / 거실오픈 | - |
| 3층발코니 / 베란다 | - |
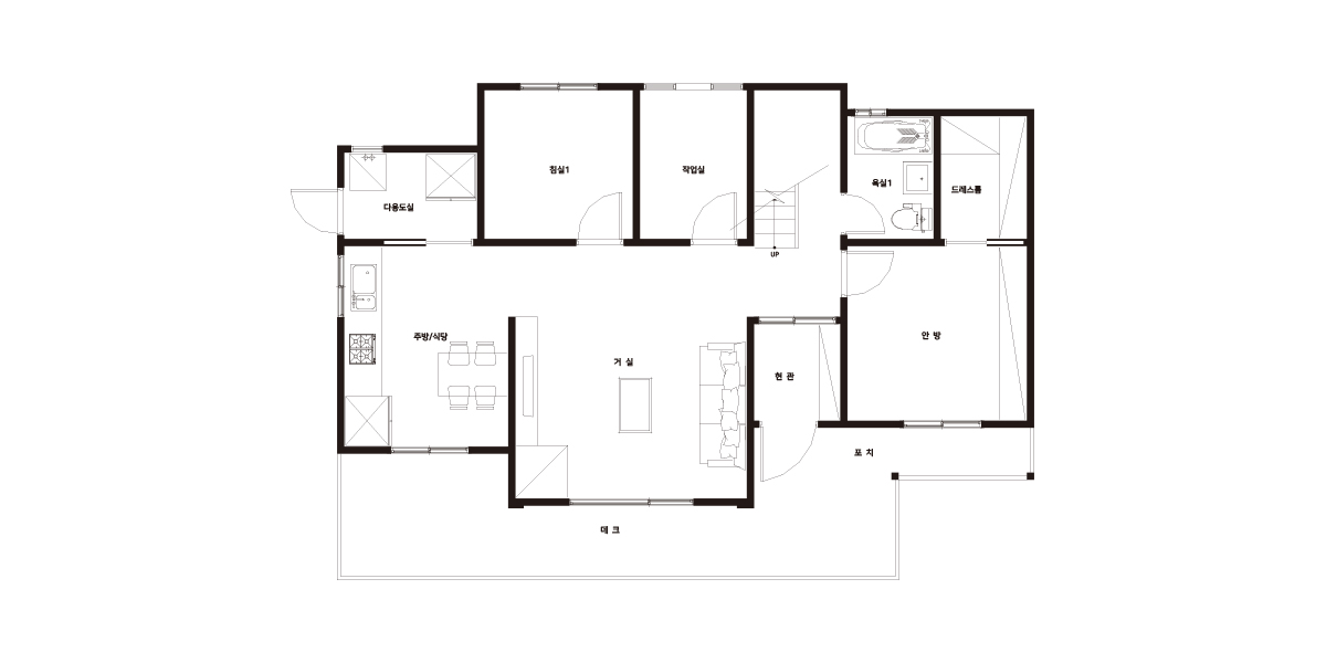
03 공간구성
Floor Plan| 1F | 1층 구성: 안방, 드레스룸, 욕실, 현관, 작업실, 침실1, 거실, 주방/식당, 다용도실 |
|---|
| 2F | 2층 구성: 침실2, 욕실 |
|---|
04 완공사진
Completion Photo