HOME - 지성갤러리 > 완공갤러리 
Modern 36평형
모던하우스 충남 천안 크레아타운 1-13
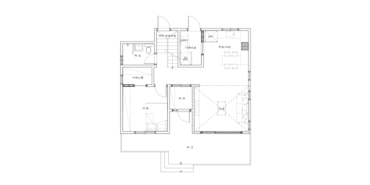
거실을 중심으로 좌우로 공용 공간과 개인 공간을 구분하여 프라이버시 확보 했습니다.
계단하부를 보일러실로 이용하여 실면적의 효율성 극대화고,
깔끔한 모던스타일로 세련미를 강조한 주택입니다.



01 담당 현장 직원
Manager in Field


02 건축개요
Housing Summary| 총면적 | 118.50㎡ (35.82py) | 구조 | 경량목구조 |
|---|---|---|---|
| 1층면적 | 71.59㎡ (21.66py) | 지붕 | 아스팔트 슁글 |
| 2층면적 | 46.91㎡ (14.19py) | 외부마감 | 테라코트(플레시텍스), 적삼목, 인조석, 리얼징크 |
| 3층면적 | - | 내부마감 | LG실크벽지, LG강화마루 |
| 1층포치 / 데크 | - / 24.13㎡ (7.30py) | 창호 | 시스템창호 |
| 2층발코니 / 베란다 | 4.75㎡ (1.44py) | 다락 / 거실오픈 | - / 1.5층 오픈 |
| 3층발코니 / 베란다 | - |
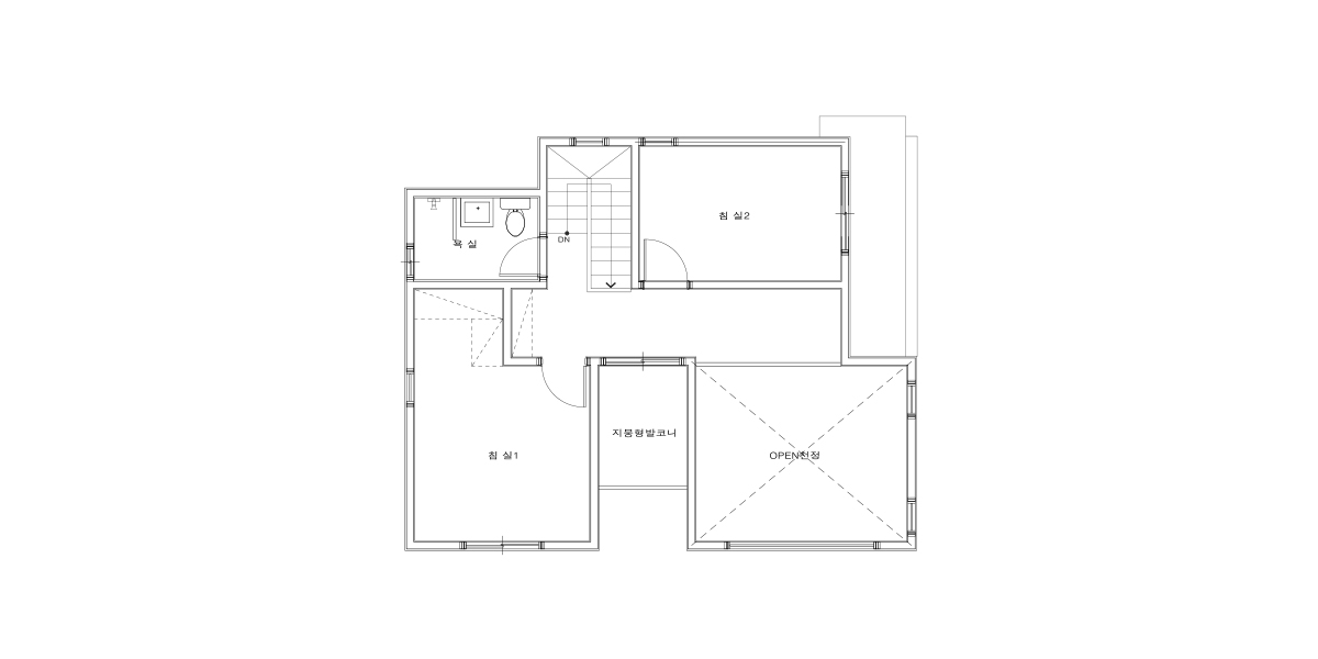
03 공간구성
Floor Plan| 1F | 1층 구성: 안방, 드레스룸, 욕실, 보일러실, 거실, 주방, 드레스룸, 현관 |
|---|
| 2F | 2층 구성: 침실1, 침실2, 욕실, 드레스룸 |
|---|
04 완공사진
Completion Photo