HOME - 지성갤러리 > 완공갤러리 
Classic 38평형
클래식하우스 경기 용인
건축주님의 편의를 고려한 동선구성 및 수납 공간 확보하고,
클래식 스타일의 깔끔한 외관과 멋스러운 모임지붕이 조화로운 주택입니다.



01 담당 현장 직원
Manager in Field


02 건축개요
Housing Summary| 총면적 | 125.05㎡ (37.83py) | 구조 | 경량목구조 |
|---|---|---|---|
| 1층면적 | 75.93㎡ (22.97py) | 지붕 | 아스팔트 슁글 |
| 2층면적 | 49.12㎡ (14.86py) | 외부마감 | 테라코트(플렉시텍스), 파벽돌, 적삼목 |
| 3층면적 | - | 내부마감 | LG실크벽지, LG강화마루 |
| 1층포치 / 데크 | 1.52㎡ (0.46py) / 21.47㎡ (6.49py) | 창호 | 시스템창호 |
| 2층발코니 / 베란다 | 6.57㎡ (1.99py) | 다락 / 거실오픈 | - |
| 3층발코니 / 베란다 | - |
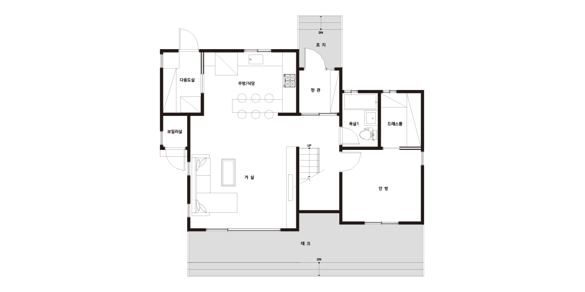
03 공간구성
Floor Plan| 1F | 1층 구성: 거실, 주방, 다용도실, 안방, 드레스룸, 욕실, 현관, 보일러실 |
|---|
| 2F | 2층 구성: 침실1, 침실2, 게스트룸, 가족실, 욕실 |
|---|
04 완공사진
Completion Photo