HOME - 지성갤러리 > 완공갤러리 Modern 53평형
모던하우스 경북 칠곡
넓은 거실과 주방으로 인한 여유로운 공용공간을 확보하고,
멀티룸과 영화관을 두어 취미생활을 할 수 있는 공간을 설계했습니다.
외부의 온실을두어 자연과의 연계 및 전원주택의 낭만을 수 있는 주택입니다.



01 담당 현장 직원
Manager in Field


02 건축개요
Housing Summary| 총면적 | 174.08㎡ (52.66py) | 구조 | 경량목구조 |
|---|---|---|---|
| 1층면적 | 93.50㎡ (28.28py) | 지붕 | 아스팔트 슁글 |
| 2층면적 | 80.58㎡ (24.38py) | 외부마감 | 테라코트(플렉시텍스), 탄화목사이딩, 리얼징크 |
| 3층면적 | - | 내부마감 | LG실크벽지, LG강화마루 |
| 1층포치 / 데크 | - / 26.45㎡ (8.00py) | 창호 | 시스템창호 |
| 2층발코니 / 베란다 | 23.07㎡ (6.98py) | 다락 / 거실오픈 | - / 1층 오픈 |
| 3층발코니 / 베란다 | - |
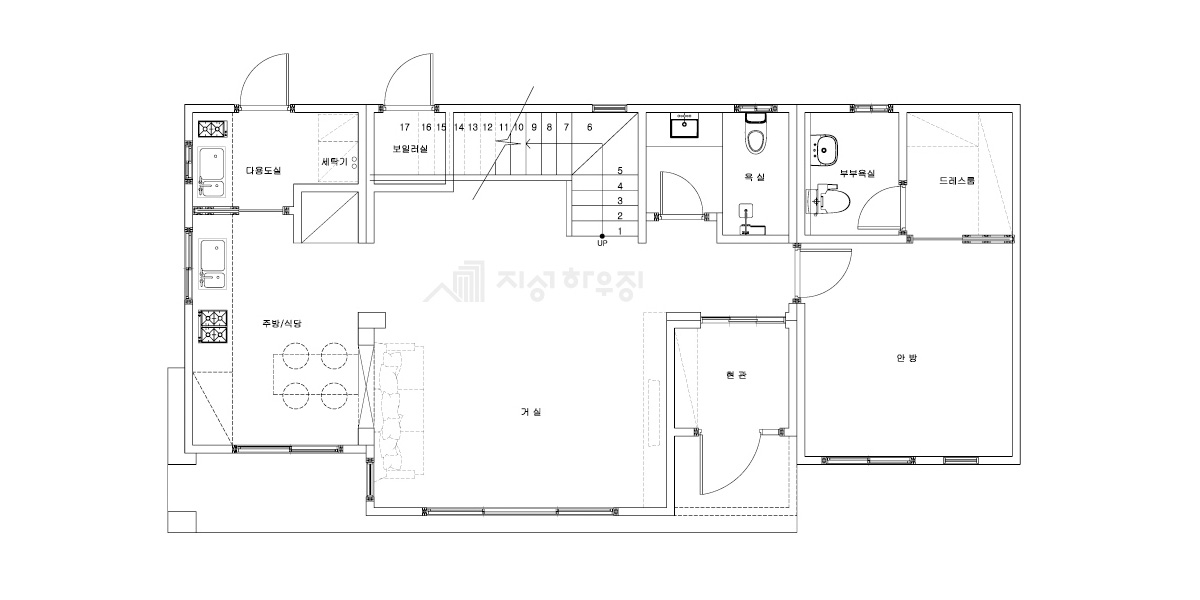
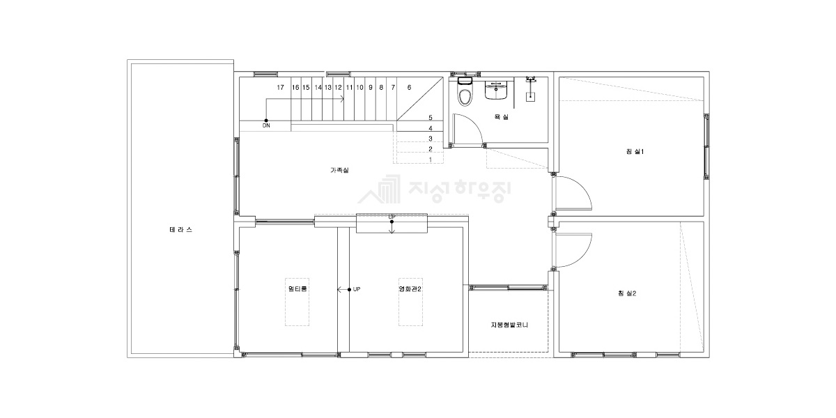
03 공간구성
Floor Plan| 1F | 1층 구성: 거실, 주방/식당, 다용도실, 보일러실, 욕실, 현관, 안방, 부부욕실, 드레스룸 |
|---|
| 2F | 2층 구성: 멀티룸, 영화관, 가족실, 욕실, 침실1, 침실2 |
|---|
04 완공사진
Completion Photo