HOME - 지성갤러리 > 완공갤러리 
Mordern 27평형
모던하우스 충남 천안 크레아타운 1-4
전체적으로 크림 그레이 색상의 벽지와 라임 오크 색상의 바닥재로 밝고 따뜻한 느낌의 공간으로 구성하였고 도형의 형태미를 살린 실내 도어나 등박스 디자인으로 발랄함을 더했습니다.
어떤 가구를 배치하여도 자연스러게 어우러질 수 있는 내추럴 모던 스타일로 디자인 하였습니다.


01 담당 현장 직원
Manager in Field


02 건축개요
Housing Summary| 총면적 | 89.30㎡ (27.01py) | 구조 | 경량목구조 |
|---|---|---|---|
| 1층면적 | 55.28㎡ (16.72py) | 지붕 | 아스팔트 슁글, 리얼징크 |
| 2층면적 | 34.02㎡ (10.29py) | 외부마감 | 테라코트(플렉시텍스), 적삼목 |
| 3층면적 | - | 내부마감 | LG실크벽지, LG강화마루 |
| 1층포치 / 데크 | - / 25.61㎡ (7.75py) | 창호 | 시스템창호 |
| 2층발코니 / 베란다 | 4.05㎡ (1.23py) | 다락 / 거실오픈 | - / 1층 오픈 |
| 3층발코니 / 베란다 | - |
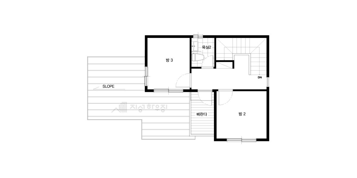
03 공간구성
Floor Plan| 1F | 1층 구성: 침실1, 거실, 주방/식당, 다용도실, 욕실, 현관, 보일러실 |
|---|
| 2F | 2층 구성: 침실2, 침실3, 욕실 |
|---|
04 완공사진
Completion Photo