HOME - 지성갤러리 > 완공갤러리 
Mordern 42평형
모던하우스 충남 천안 크레아타운 1-5
화이트 창에 블랙 프레임으로 에지와 모던함을 녹여내고
나무질감으로 따뜻함을 더한 심플하고 모던한 외관이 시야에 담깁니다.



01 담당 현장 직원
Manager in Field


02 건축개요
Housing Summary| 총면적 | 137.40㎡(41.56py) | 구조 | 경량목구조 |
|---|---|---|---|
| 1층면적 | 79.78㎡ (24.13py) | 지붕 | 아스팔트 슁글, 리얼징크 |
| 2층면적 | 57.62㎡ (17.43py) | 외부마감 | 스타코, 탄화목사이딩, 리얼징크 |
| 3층면적 | - | 내부마감 | LG실크벽지, LG강화마루 |
| 1층포치 / 데크 | - / 30.33㎡ (9.17py) | 창호 | 시스템창호 |
| 2층발코니 / 베란다 | 7.04㎡ (2.13py) | 다락 / 거실오픈 | 14.56㎡ (4.40py) / 1.5층 오픈 |
| 3층발코니 / 베란다 | - |
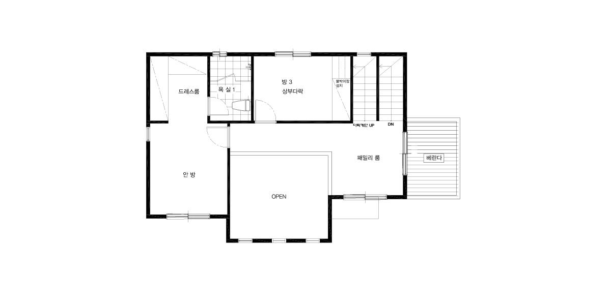
03 공간구성
Floor Plan| 1F | 1층 구성: 침실1, 침실2, 거실, 주방/식당, 다용도실, 보일러실, 욕실, 창고, 현관 |
|---|
| 2F | 2층 구성: 안방, 드레스룸, 욕실, 침실3, 패밀리룸 |
|---|
04 완공사진
Completion Photo